EasyManua.ls Logo

Bryant 589A - 589 A042-060 Without Base Rail, Unit Dimensions

Bryant 589A
52 pages
Print Icon
To Next Page IconTo Next Page
To Next Page IconTo Next Page
To Previous Page IconTo Previous Page
To Previous Page IconTo Previous Page
Loading...
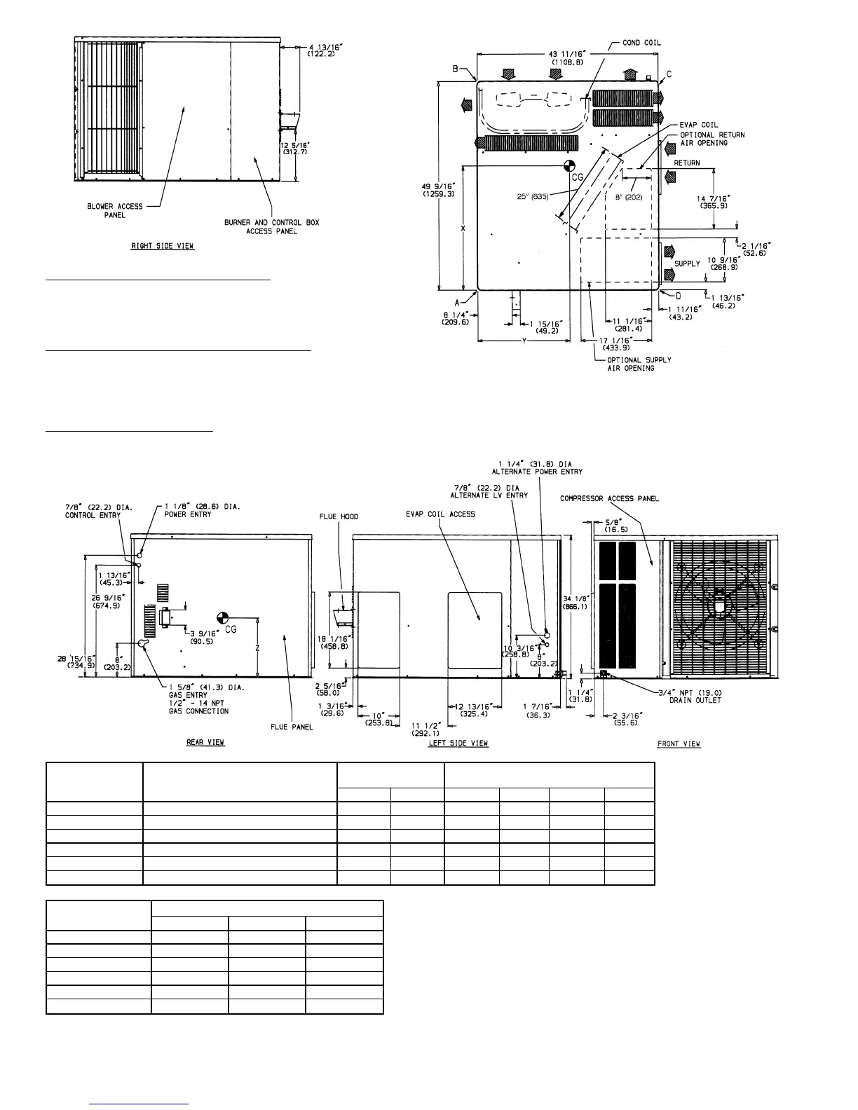
REQ’D CLEARANCES FOR SERVICING. in. (mm)
Duct panel .............................0
Unit top ...........................36(914)
Side opposite ducts .....................36(914)
Compressor access .....................36(914)
(Except for NEC requirements)
REQ’D CLEARANCES TO COMBUSTIBLE MAT’L. in. (mm)
Maximum extension of overhangs ...............48(1219)
Unit top ...........................14(356)
Duct side of unit ........................2(51)
Side opposite ducts .....................14(356)
Bottom of unit ...........................0
Flue panel .........................36(914)
NEC REQ’D CLEARANCES. in. (mm)
Between units, control box side ................42(1067)
Unit and ungrounded surfaces, control box side .........36(914)
Unit and block or concrete walls and other grounded
surfaces, control box side ..................42(1067)
UNIT
589A
ELECTRICAL
CHARACTERISTICS
UNIT WEIGHT
CORNER WEIGHT
(lb/kg)
lbkgABCD
042060/080 208/230-1-60, 208/230-3-60, 460-3-60 391 178 100/45 91/41 120/55 80/36
042100/120 208/230-1-60, 208/230-3-60, 460-3-60 403 183 103/47 94/43 123/56 83/38
048080 208/230-1-60, 208/230-3-60, 460-3-60 422 192 109/50 85/39 158/72 70/32
048100/120/140 208/230-1-60, 208/230-3-60, 460-3-60 434 197 112/51 88/40 161/73 73/33
060080 208/230-1-60, 208/230-3-60 453 206 117/53 93/42 167/76 76/35
060100/120/140 208/230-1-60, 208/230-3-60 465 211 120/55 96/44 167/76 82/37
UNIT
589A
CENTER OF GRAVITY (in./mm)
XYZ
042060/080 26.66/677 21.19/538 15.35/390
042100/120 26.61/676 21.21/539 15.35/390
048080 28.45/723 19.95/507 15.35/390
048100/120/140 28.35/720 19.99/508 15.35/390
060080 28.36/720 23.27/591 15.35/390
060100/120/140 27.95/710 23.23/590 15.35/390
LEGEND
CG Center of Gravity
COND Condenser
LV Low Voltage
MAT’L Material
NEC National Electrical Code
REQ’D Required
NOTES:
1. Clearances must be maintained to prevent recirculation of air from outdoor-
fan discharge.
2. Adequate clearance around air openings into combustion chamber must
be provided.
Fig. 8 589A042-060 Without Base Rail, Unit Dimensions
—8—

Table of Contents

Related product manuals