EasyManua.ls Logo

Burkert 8025 - Entering the Dosing Quantities in the Device Memory; Configuring the Overfill Correction or Deactivating It

Burkert 8025
140 pages
Print Icon
To Next Page IconTo Next Page
To Next Page IconTo Next Page
To Previous Page IconTo Previous Page
To Previous Page IconTo Previous Page
Loading...
103
Operating and functions
10.7.14 Entering the dosing quantities in the device memory
The parameter "VOLUMES" of the sub-menu "OPTIONAL" allows for entering up to 7 dosing quantities in the
device memory.
These quantities are then available when the dosing modes"LOC. MEM", "MEM+MANU", "EXT. MEM" or "EXT.
+LOC" is active.
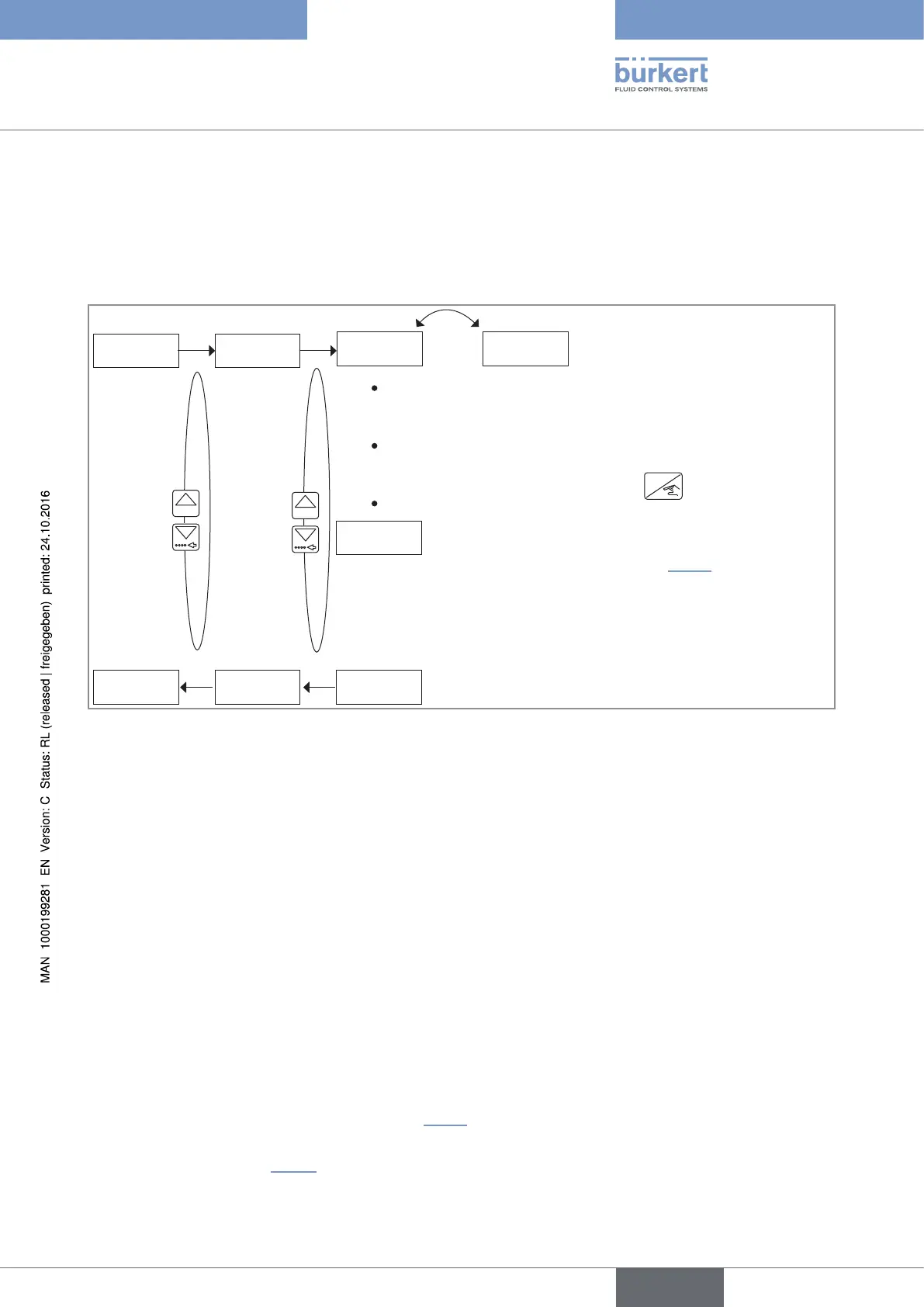
OPtiONAL VOLUMES
The display alternately shows the called memory and the
dosing quantity.
To modify the quantity, press
ENTER
.
Enter the dosing quantity related to the chosen memory
(value between 0.0001 and 99999 dosing units, the
units have been chosen in chap. 10.7.2) ; Set a quantity
so that Vn times the K-factor is higher than 6.
Confirm.
Enter up to 7 dosing quantities.
REtURN
V7
ENDOVERFiLL
0......9
0......9
V1 00120 L
Fig. 74 : Configuring the dosing quantities
10.7.15 Configuring the overfill correction or deactivating it
When a dosing is finished, the device controls the closing of the main valve (or of the auxiliary valve).
The overfilling is the quantity of liquid that has been counted by the device once the valve is closed.
When the overfill correction is active, the overfilling of a dosing is deducted from the next dosing(s).
The overfill correction can be either:
direct: the overfilling is deducted from the next dosing.
or smoothed: the device smoothes (with a "low", "medium" or "high" effect) the overfillings of the last x dosings
and deducts the calculated value from the next dosing.
Tolerance of the overfilling:
A tolerance for the overfilling value can be furthermore entered: if the overfilling of a dosing exceeds the tolerance,
that overfilling value will not be taken into account in the next smoothing calculations and the warning message
"W. OVER." is generated by the device. See chap. 11.3.3 to solve the problem.
To avoid a false dosing after a modification in the process, reset the table of the overfill correction values before
restarting the process. See Fig. 75.
English
Type 8025 - 8035 - SE35 BATCH

Table of Contents

Other manuals for Burkert 8025

Related product manuals