EasyManua.ls Logo

Burkert 8025 - Installing the 8025 Batch (Wall-mounted)

Burkert 8025
140 pages
Print Icon
To Next Page IconTo Next Page
To Next Page IconTo Next Page
To Previous Page IconTo Previous Page
To Previous Page IconTo Previous Page
Loading...
40
Fluid installation
7.6 Installation of the dosing controller 8025 Batch in
wall-mounted version
note
Risk of material damage if the cable glands are not tightly screwed on the housing
Before installing the wall-mounted housing on its support, tighten the nuts of the entry item of the cables
glands at a torque of 1.5 Nm.
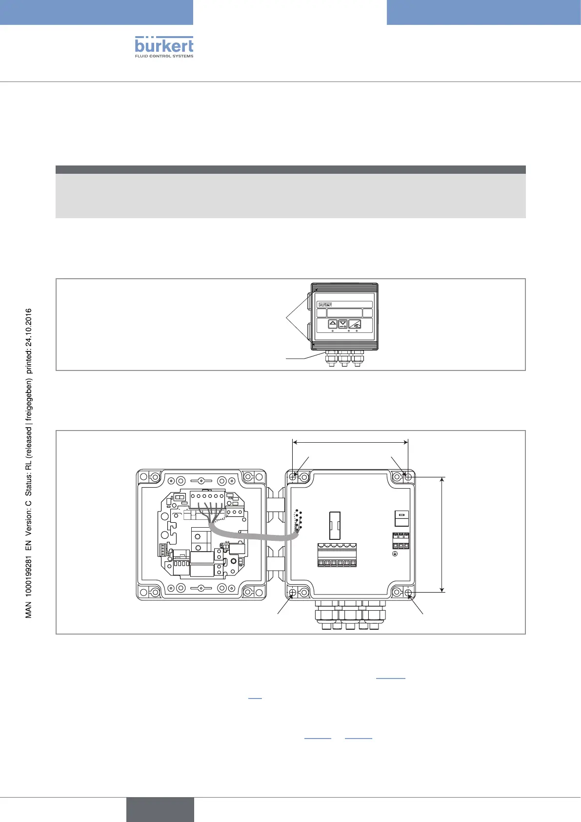
The device in a wall-mounted version has 4 holes in the bottom of the housing.
Remove the blanking strips covering the screws.
Blanking strips
ENTER
0....9
FLOW
Ffastening nuts
Fig. 18 : Location of the fastening nuts and the blanking strips
Loosen the 4 screws and open the cover to get access to the holes [1].
1 1
11
106 mm
230V
LN
230V
T 250 mA
56789 10
LN
230V
CURRENT
SOURCE SINK
BINARY
PE PEPE
PE
DI1
DI2
DI3
DI4
DO4
ISOG
FLOW
SENSOR
L+ L- PE P- P+
NC
Iout
PULSE
DO1
Supply
12..36Vdc
Univ
Batch
(AO1)
SUPPLY
NC
COIL
PULSE
INPUT
NPN/PNP
213PE
+-
SENSOR
SUPPLY
LOAD
+5V
L+
(L+)-12V
COIL/PNP
39K
470
2.2K
SENSOR TYPE
COIL NPN/PNP
DO2
DO3
OFFON
106 mm
Fig. 19 : Installation of the dosing controller 8025 Batch in wall-mounted version
Secure the housing to the support respecting the dimensions indicated in Fig. 19.
Wire according to the instructions in chap. 8.8.
Close the housing and tighten the 4 screws of the cover.
Set the K-factor or determine it with Teach-In (see chap. 10.7.3 or 10.7.4).
English
Type 8025 - 8035 - SE35 BATCH

Table of Contents

Other manuals for Burkert 8025

Related product manuals