EasyManua.ls Logo

BYD EPS14Pi - Maintain Mast

BYD EPS14Pi
39 pages
Print Icon
To Next Page IconTo Next Page
To Next Page IconTo Next Page
To Previous Page IconTo Previous Page
To Previous Page IconTo Previous Page
Loading...
MAINTENANCE OF VEHICLES
USER MANUAL
62
EPS14Pi
63
CHECK FASTENERS TORQUE OF THE MAST
11
11
11
11
12
12
11
BOLTS FOR FIXING MAST
WITH FORKLIFT BODY
100 N-m
12
SCREW FOR CONNECTINGMAST
WITH THE FORKLIFT BODY
2 30 N-m
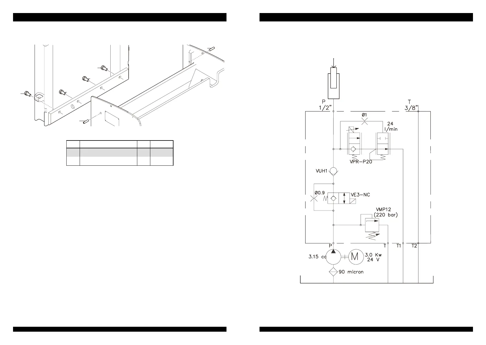
SCHEMATIC DIAGRAMS
HYDRAULIC SCHEMATIC DIAGRAM
CODE PART NAME QTY
OTHER
INFORMATION
4
OM-EPS14Pi2019001-
E
N
OM-EPS14Pi2019001-
E
N

Table of Contents

Related product manuals