EasyManua.ls Logo

Calorex Variheat AA600 - Page 38

Calorex Variheat AA600
72 pages
Print Icon
To Next Page IconTo Next Page
To Next Page IconTo Next Page
To Previous Page IconTo Previous Page
To Previous Page IconTo Previous Page
Loading...
38
1002595 ISSUE 5 M172 VARIHEAT
VARIHEAT AA SYSTEM OWNER INSTALLATION MANUAL
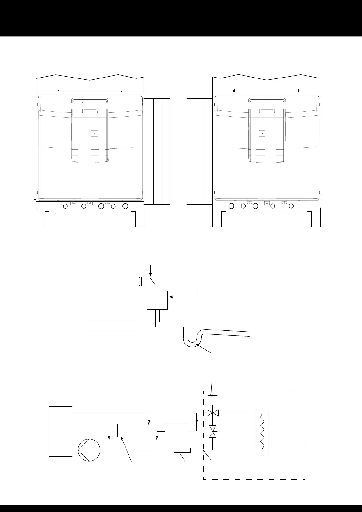
DRAIN ¾" BSPM
AIR FILTER ACCESS PANEL
AIR FILTER ACCESS PANEL
Variheat wi standard pipe connections Variheat wi RF pipe connections
LPHW IN ¾" BSPM AW600/900
1" BSPM ON AW1200/1500
ELECTRICS PANEL
LPHW OUT ¾" BSPM AW600/900
1" BSPM ON AW1200/1500
ELECTRICS PANEL
1" BSPM ON AW1200/1500
1" BSPM ON AW1200/1500
DRAIN ¾" BSPM
LPHW IN ¾" BSPM AW600/900
LPHW OUT ¾" BSPM AW600/900
3 way motorised valve
(diverting) controlled
by heat pump
LPHW Schematic
Boiler
Flow
balance
valve
LPHW connections
located on Delta cabinet
Flow setting
pressure gauges
meod
Radaitors, if fitted
Pump
Flow meter or
commissioning set
Flow setting
pressure gauges
meod
Customers "tun dish"
Copper stub
Drain to waste
U trap
VH3 drain
Variheat III
unit
DRAIN ¾" BSPM
AIR FILTER ACCESS PANEL
AIR FILTER ACCESS PANEL
Variheat wi standard pipe connections Variheat wi RF pipe connections
LPHW IN ¾" BSPM AW600/900
1" BSPM ON AW1200/1500
ELECTRICS PANEL
POOL WATER IN 1" BSPM
POOL WATER OUT 1" BSPM
LPHW OUT ¾" BSPM AW600/900
1" BSPM ON AW1200/1500
ELECTRICS PANEL
1" BSPM ON AW1200/1500
1" BSPM ON AW1200/1500
POOL WATER IN 1" BSPM
POOL WATER OUT 1" BSPM
DRAIN ¾" BSPM
LPHW IN ¾" BSPM AW600/900
LPHW OUT ¾" BSPM AW600/900
LPHW Schematic
Condensate drain
Customers "tun dish"
Copper stub
Drain to waste
U trap
Variheat III
unit
Boiler
Pump
Radiators if fitted
Flow balance
valve
Internal ree way motorised valve
(diverting) controlled by Variheat
Flow meter
LPHW
connections
Variheat
cabinet
(Factory set)

Related product manuals