EasyManua.ls Logo

Calorex Variheat AA600 - 6 Dimensions

Calorex Variheat AA600
72 pages
Print Icon
To Next Page IconTo Next Page
To Next Page IconTo Next Page
To Previous Page IconTo Previous Page
To Previous Page IconTo Previous Page
Loading...
56
1002595 ISSUE 5 M172 VARIHEAT
VARIHEAT AA SYSTEM OWNER INSTALLATION MANUAL
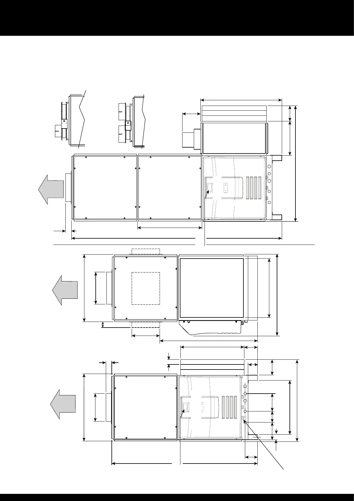
6.0 DIMENSIONS
600/900 vertical, upflow versions
333
615
698
Alternative
supply air
positions
1017
289
Variheat wiout optional modules
60
Drain ¾" BSPM
160
560
56
662
Air filter access panel
50
1514
289
60
698
Service panel
Service panel
Service panel
Service panel
148
842
Cable entry
points
182 115 183
100
130
2184
355
Fresh air
module
Service panel
Damper
Resistance heater module
(If fitted)
In is position only
670
Spigots
See
above
190
60
160
1180
Air filter access panel
Service panel
Variheat wi fresh module,
negative pressure module
and/or resistance heater module
843
Service panel
Negative pressure module
1 spigot
diameter 157mm
Fresh air module
2 spigots
diameter 225mm
Drain
Touchscreen
user interface
Touchscreen
user interface
Return air from
pool hall
Exhaust
air out
Fresh
air in
LPHW in
¾" BSPM
LPHW out
¾" BSPM
Electric box
assembly
Electric box
assembly
LPHW in
LPHW out
Service panel
Electric box assembly
839
Supply
air to
pool hall
Supply
air to
pool hall
Supply
air to
pool hall

Related product manuals