EasyManua.ls Logo

Calorex Variheat AA600 - Page 57

Calorex Variheat AA600
72 pages
Print Icon
To Next Page IconTo Next Page
To Next Page IconTo Next Page
To Previous Page IconTo Previous Page
To Previous Page IconTo Previous Page
Loading...
57
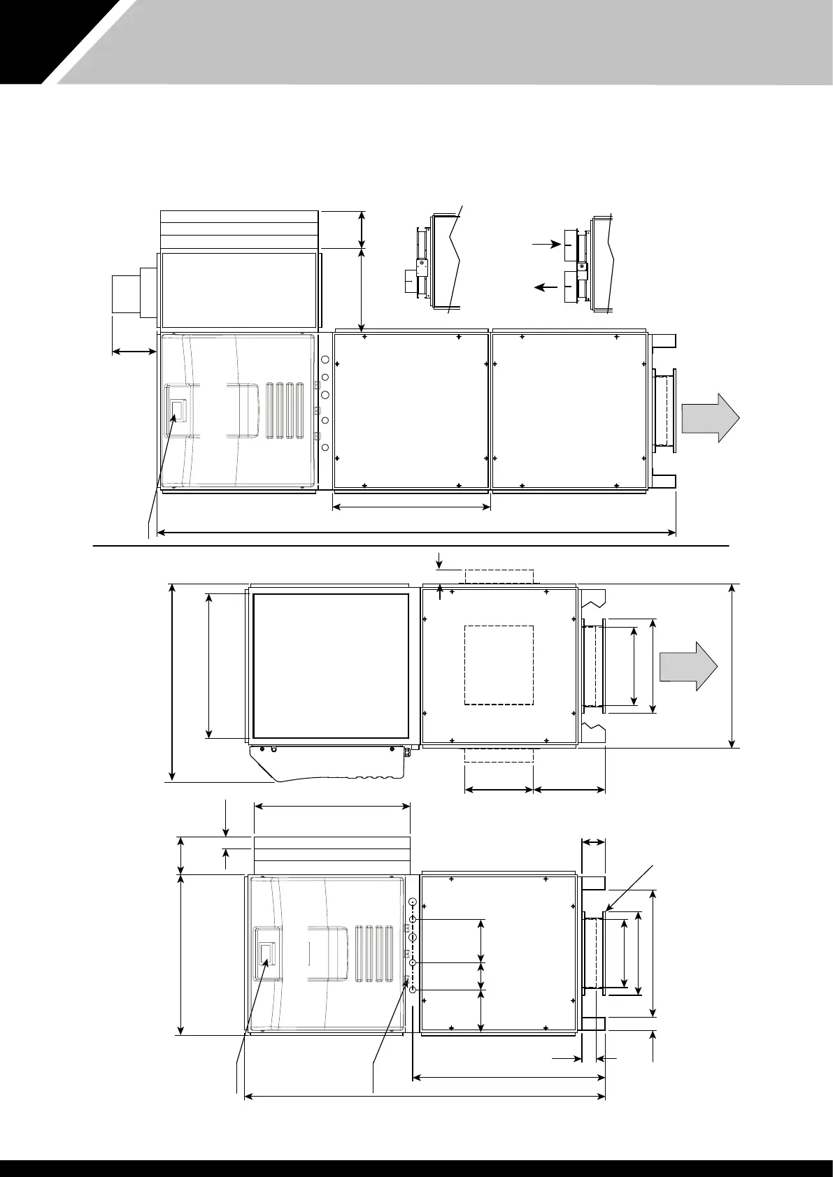
1002595 ISSUE 5 M172 VARIHEAT
Cable
entry points
289
Service panel
Service panel
Service panel
662
Air filter access panel
50
54056
100
160
1530
355
Air off sealing duct
817
183
115
180
683.5
60
333
Alternative
supply air
positions
400
Return air from
pool hall
615
698
305289
Supply air
to pool hall
Fresh air
module
Service panel
Damper
670
Air filter access panel
Variheat wi fresh air module,
negative pressure module and/or
resistance heater module
Resistance heater module
(if fitted)
In is position only
Service panel
2199
355
Spigots
See
below
160
190
Service panel
Fresh air module
2 spigots
diameter 225mm
Negative pressure module
one spigot
diameter 157mm
60
Touchscreen
User Interface
Exhaust
air out
Fresh
air in
Variheat wiout optional modules
LPHW in ¾" BSPM
LPHW out ¾" BSPM
Drain ¾" BSPM
Electric box
assembly
LPHW in
¾" BSPM
LPHW out
¾" BSPM
Drain ¾" BSPM
Electric box
assembly
Touchscreen
User Interface
839
Electric box assembly
Service panel
Service panel
Supply air
to pool hall
600/900 vertical, downflow versions

Related product manuals