EasyManua.ls Logo

Calorex Variheat AA600 - Page 52

Calorex Variheat AA600
72 pages
Print Icon
To Next Page IconTo Next Page
To Next Page IconTo Next Page
To Previous Page IconTo Previous Page
To Previous Page IconTo Previous Page
Loading...
52
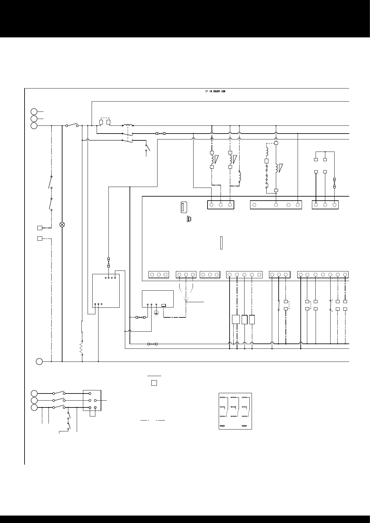
1002595 ISSUE 5 M172 VARIHEAT
VARIHEAT AA SYSTEM OWNER INSTALLATION MANUAL
PHASE ROTATION
FOR AA1200 AND 1500
SEE BELOW
BLUE
BLUE/WHITE
BROWN
RELAY 3
FUSE 91
800mA
CAP OFF
UNUSED
CABLES
FUSE 92 160mA
21
22
COMPRESSOR
CONTACTOR
1200 & 1500 THREE PHASE VARIHEATS ONLY
CONTROL MCB
PHASE ROTATION
RELAY
L3
L2
L1
14
11
POWER SUPPLY/
FIRE ALARM AND
FUSE 3
8
5
9
6
L3
L2
L1
R2
R1
TO
FAN
CONTROL
TO
COMPRESSOR
CONTACTOR 21
NOTES
15 = DIN RAIL MOUNTED TERMINAL BLOCK NUMBERS
2. IF REMOTE OCC/UNOCC FEATURE USED
a) FORCE TIME CLOCK TO ‘UNOCCUPIED’
b) 10/11 N/O = ‘UNOCCUPIED’
c) 10/11 N/C = ‘OCCUPIED’
= OPTIONS
L
H
GND
+
-
GND
RS485-1
+
-
GND
RS485-2
CAN
CN1CN18 CN19 CN2
HMI SCREEN
24V DC
+ - FG COM 1
DAMPER POSITION
MAIN FAN SPEED
EXHAUST FAN SPEED
MAIN FAN FAULT
REMOTE ON/OFF
OCC/ UNOCCUPIED
R1 FIRE ALARM RELAY
FORCE VENTILATION
MAIN FAN FILTER BLOCKED
GND
A01
A02
A03
A04
CN3
COM-D1
DI1
DI2
CN4
COM-D1
DI3
DI4
DI5
DI6
DI7
DI8
AI1
AI2
AI3
AI4
AI5
AI6
AI7
AI8
GND
5V DC
24V DC
CN5
M172
GND
AO5
AO6
CN11
AIR TEMPERATURE PROBE
HUMIDITY PROBE
AMBIENT TEMPERATURE PROBE
FROST PROTECTION PROBE
DEFROST TEMPERATURE PROBE
RESISTANCE HEATER FAN STAT
COM-D1
DI9
DI10
DI11
DI12
CN12
CN13
AI9
AI10
AI11
AI12
GND
5V DC
24V DC
POWER SUPPLY
MEMORY CARD
MICRO SD
MAINS
LAMP
RCU
RELAY
RCU
MCB
(IF FITTED)
CONTROL MCB
FIRE ALARM TERMINALS
SWITCHED (230V AC)
(LINK IF NOT USED)
CN16
CN17
FIRE ALARM
RELAY R1
FUSE 93 800mA
RCU VALVE A
RCU VALVE B
230V
230V
230V
RESISTANCE HEATER ASSY
FAN CONTACTOR THERMAL CUT OUTS
TIMER
CONTACTOR
AIR LPHW VALVE
SEE PREVIOUS PAGE FOR
POWER SECTION
C8
DO8-
DO8
CN6 CN7
D06
DO5
C567
DO7
VOLT FREE TERMINALS
MAXIMUM TOTAL LOAD 500mA
FA U LT
FUSE 16 800mA
FUSE 6 800mA
MACHINE ON
BOILER GO
FUSE 63 160mA
REMOTE DAMPER
DEFROST VALVE
230V
FAN RELAY
COMPRESSOR
CONTACTOR
R2
R3
RCU
+ + - -
24V DC
24V DC
FUSE 90
2.5A
230V AC
L N E
CRANKCASE
HEATER
(IF FITTED)
L3
L2
L1
R4
N
75
74
4
7
A
1
2
B
9
R2
6
6
8
5
9
78 78
77 79
R4
B
A
57
58
A1
A2
14
13
D
18
16
17
16
DO4
DO3
C34
CN8
CN9
C2
DO2
C1
DO1
CN10
7
6
+ -
AC
DC
V
TOP TERMINALS
HP SWITCH
FUSE 3
800mA
LP SWITCH
SOFT START
(IF FITTED)
LINK IF NOT USED
64
63
56
55
A1
A2
9
6
B
A
CN14
C12
DO12-
DO12
CN15
DO11
DO10
DO9
C91011
20
19
B
A
R3
7
1
14
15
12
13
10
11
50
51
52
53
59
60
0-10V
V+ V-
0-10V
GND
-
+
0-10V
GND
-
+
0-10V
+
GND
-
24
+
STANDARD RELAY FORMAT
1 2
4
3
5
6
8
7
9
A
COIL
B
N/C
N/O
N/C N/C
COMCOM COM
N/ON/O
CONTROL CIRCUIT DIAGRAM AA+LPHW MODELS

Related product manuals