EasyManua.ls Logo

CAME BKS08ALS - Electrical Connections

CAME BKS08ALS
28 pages
Print Icon
To Next Page IconTo Next Page
To Next Page IconTo Next Page
To Previous Page IconTo Previous Page
To Previous Page IconTo Previous Page
Loading...
10 11 TS 1 2 3 3P 4 5 7 CX CY
L N U V W E1 EX W L1T L2T CT VS VF
24V 0
FC FA F
p. 14 - Manual FA01208-EN - 07/2021 - © CAME S.p.A. - Translated original instructions
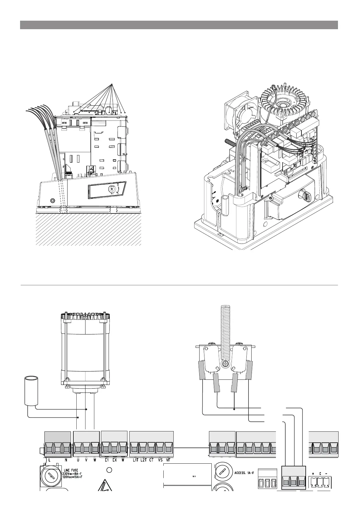
WHITE
RED
ORANGE
Mechanical limit switch
Opening limit-switch
micro-switch
Condenser
120/230V (AC) gear motor
Control-board brace cable glands
Closing limit-switch
micro-switch
ELECTRICAL CONNECTIONS
⚠
Connect all wires and cables in compliance with the law.
Before connecting all the wires, set up the cables by using cable glands on the control board brace, as shown in the figure.
The electrical cables must not touch any heated parts such as the motor, transformer, and so on.
FACTORY WIRING

Related product manuals