EasyManua.ls Logo

CAME BXV10AGF

CAME BXV10AGF
32 pages
To Next Page IconTo Next Page
To Next Page IconTo Next Page
To Previous Page IconTo Previous Page
To Previous Page IconTo Previous Page
Loading...
󱢿
󱢾
󱢳󱢴󱢵
󱢶
󱢷
󱢸
󱢹
󱢺
󱢻
󱢼
󱢽
p. 14 - Manual FA01719-EN - 03/2022 - © CAME S.p.A. - Translated original instructions
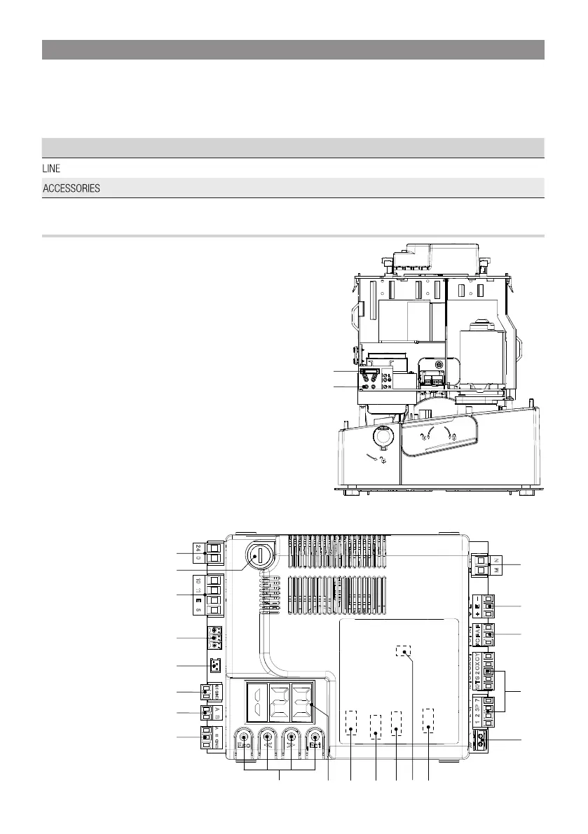
ELECTRICAL CONNECTIONS AND PROGRAMMING
Caution! Before working on the control panel, cut o the mains power supply and remove any batteries.
Power supply to the control board and control devices : 24 V AC/ DC.
Functions on the input and output contacts, time adjustments and user-management settings are set and viewed
on the control board's display.
All wiring connections are quick-fuse protected.
Fuses ZN7V
- Line 1,6 A-F (230V) / 3,15 A-F (120V)
- Accessories 2 A-F (230V) / 2 A-F (120V)
DESCRIPTION OF PARTS
1. Terminal for gearmotors
2. Terminals for encoders
3. Terminals for limit-switches
4. Command and safety devices terminals
5. Antenna terminal
6. AF card slot
7. Memory Roll card connector
8. R700/R800 board connector
9. RSE card slot
10. Connector for the RIOCN8WS card
11. Display
12. Programming buttons
13. Terminals for paired of CRP connection
14. Terminal board for keypad devices
15. Terminal board for transponder selector
16. Connector for the GSM module
17. Terminals for the RGP1 module
18. Terminals for signaling devices
19. Accessories fuse
20. Terminals for powering the control board
21. Line fuse
22. Power supply terminal board

Related product manuals