EasyManua.ls Logo

CAME BXV10AGF - Standard Installation

CAME BXV10AGF
32 pages
Print Icon
To Next Page IconTo Next Page
To Next Page IconTo Next Page
To Previous Page IconTo Previous Page
To Previous Page IconTo Previous Page
Loading...
290
145 145
300
170
425
212
160
106
117
250
85 85
1
10
3
4
2
2
7
7
7
6
9
6
6
6
6
11
12
8
8
5
p. 6 - Manual FA01719-EN - 03/2022 - © CAME S.p.A. - Translated original instructions
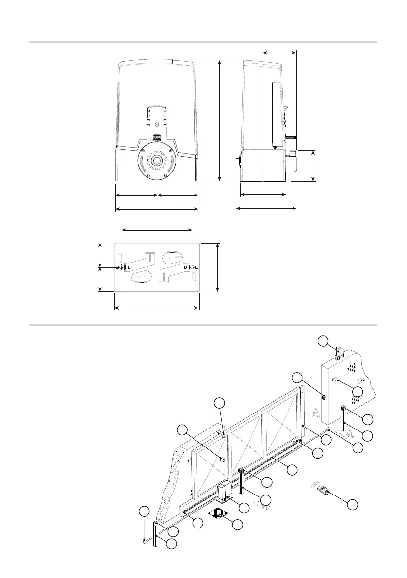
STANDARD INSTALLATION
1. Operator
2. Limit-switch fins
3. Rack
4. Selector
5. Flashing light
6. Photocells
7. Photocell post
8. Mechanical gate stop
9. Transmitter
10. Slide guides
11. Junction pit
12. Sensitive safety-edge
DIMENSIONS

Related product manuals