EasyManua.ls Logo

Canatal M52 - Page 52

Default Icon
53 pages
Print Icon
To Next Page IconTo Next Page
To Next Page IconTo Next Page
To Previous Page IconTo Previous Page
To Previous Page IconTo Previous Page
Loading...
M52 Microprocessor User's Guide
M52UMCT Oct-03 52
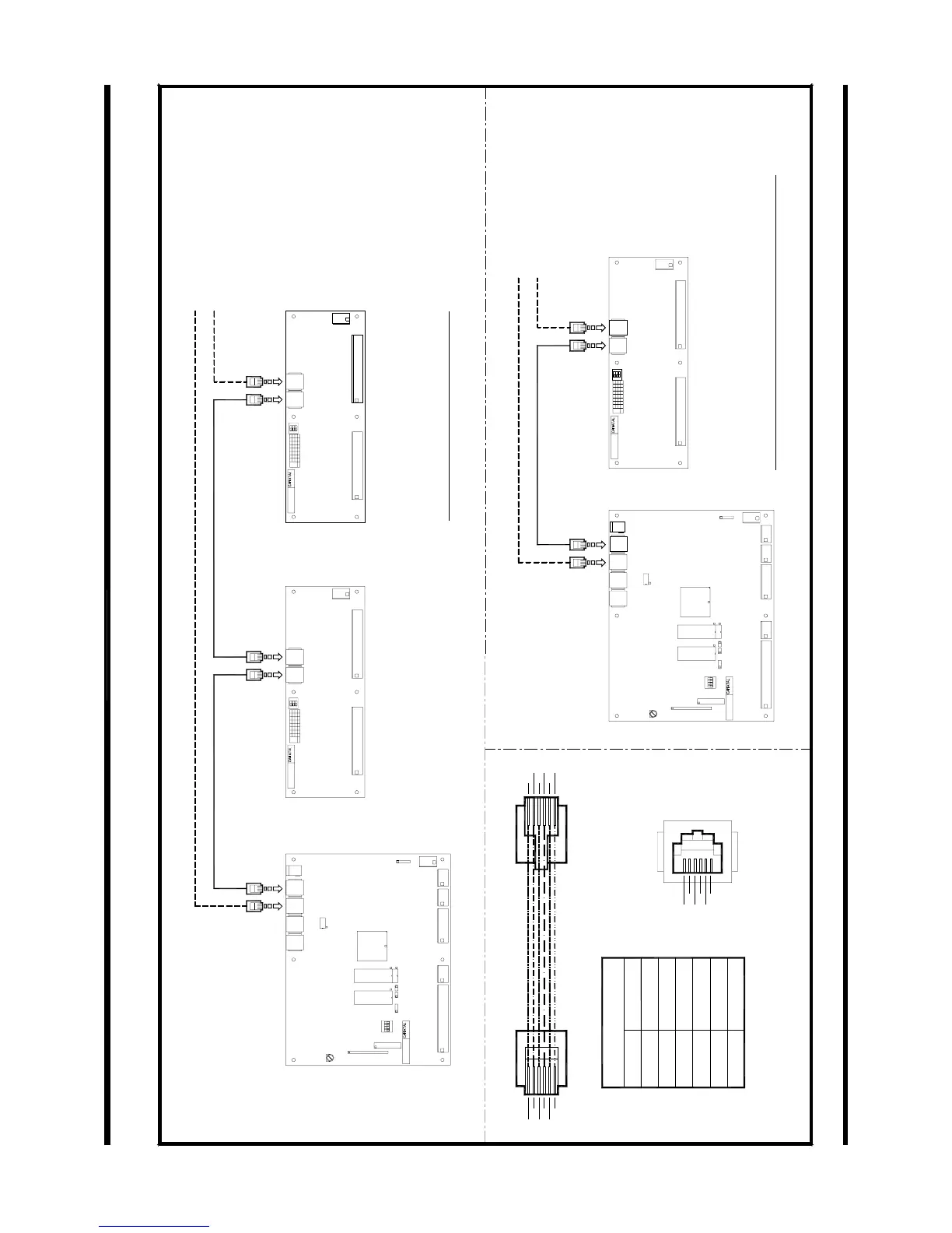
1. J31 and J32 are RJ12 socket.
J31 and J32 (I2C)
2
1
4
5
6
3
PIN No.
Note :
SDA
GRD
SCL
PWR
GRD
GRD
Signal
Co-Work cable from either port
1
M52 - M V4
1
J14 J51
1
J13
1
J12
1
VR1
ON
1
LCD1
4
SW1
23
JP1
KB1
JP11JP2
U5 U3
U1
U14
J11
1
J01
BL1
J02
J22 J31 J32J21
J21
1
M52 - D V4
Address
8
Switch
State
Card
OFF
OFF
OFF
1
J11
SW1
OFF
OFF
3
OFF
4567
OFF
OFF
OFF
OFF
OFF
OFF
OFF
OFFOFF
OFF
OFF
OFF
12
OFF
OFF
OFF
OFF
OFF
OFF
321
ON
1
J01
J31 J32
Socket
PC Board
M52ES13B
03 FEBRUARY 2003
Co-Work I2C Interconnection Link
M52 CONTROL SYSTEM
Dimension: Not to scale
CANATAL
U5
M52 - M V4
1
J14
LCD1
ON
SW1
2134
JP1
J51
11
JP11JP2
U3
U1
VR1
KB1
J21
1
BL1
J01
1
J12J13
1
J11
1
U14
J22 J31 J32
J02
J11
1
J21
SW1
OFF
OFF
OFF
6
M52 - D V4
OFFOFF
Address
Card
78
State
Switch
OFF
OFF
OFF
OFF OFF
OFF
OFF
1
OFFOFFOFF OFF
5
423
OFF
OFFOFF
OFF OFF
OFFOFF
OFF
3
12
ON
J32J31
J01
1
J11
1
J01
J31 J32
Card
1
SW1
J21
6
Address
78154 23
1
OFF
OFF
OFF
M52 - D V4
Switch
State
OFF
OFF
OFF
OFF
OFFOFF
OFF
OFF
OFFOFF
OFFOFF
OFF
OFFOFF
OFF
OFFOFF
OFF
OFFOFF
123
ON
Connect to Unit No. 2
UNIT NO. 1 ( SERIES 9 )
Connect to Unit No. 2
Co-Work cable from either port
UNIT NO. 1 ( SERIES 6, 7, 8 & 11 )
3
2
1
6
5
4
1
6
5
3
2
4
3
5
1
6
2
4

Table of Contents