EasyManua.ls Logo

Carrier 3V VVT 33ZCVVTZC-01 - Page 6

Carrier 3V VVT 33ZCVVTZC-01
59 pages
To Next Page IconTo Next Page
To Next Page IconTo Next Page
To Previous Page IconTo Previous Page
To Previous Page IconTo Previous Page
Loading...
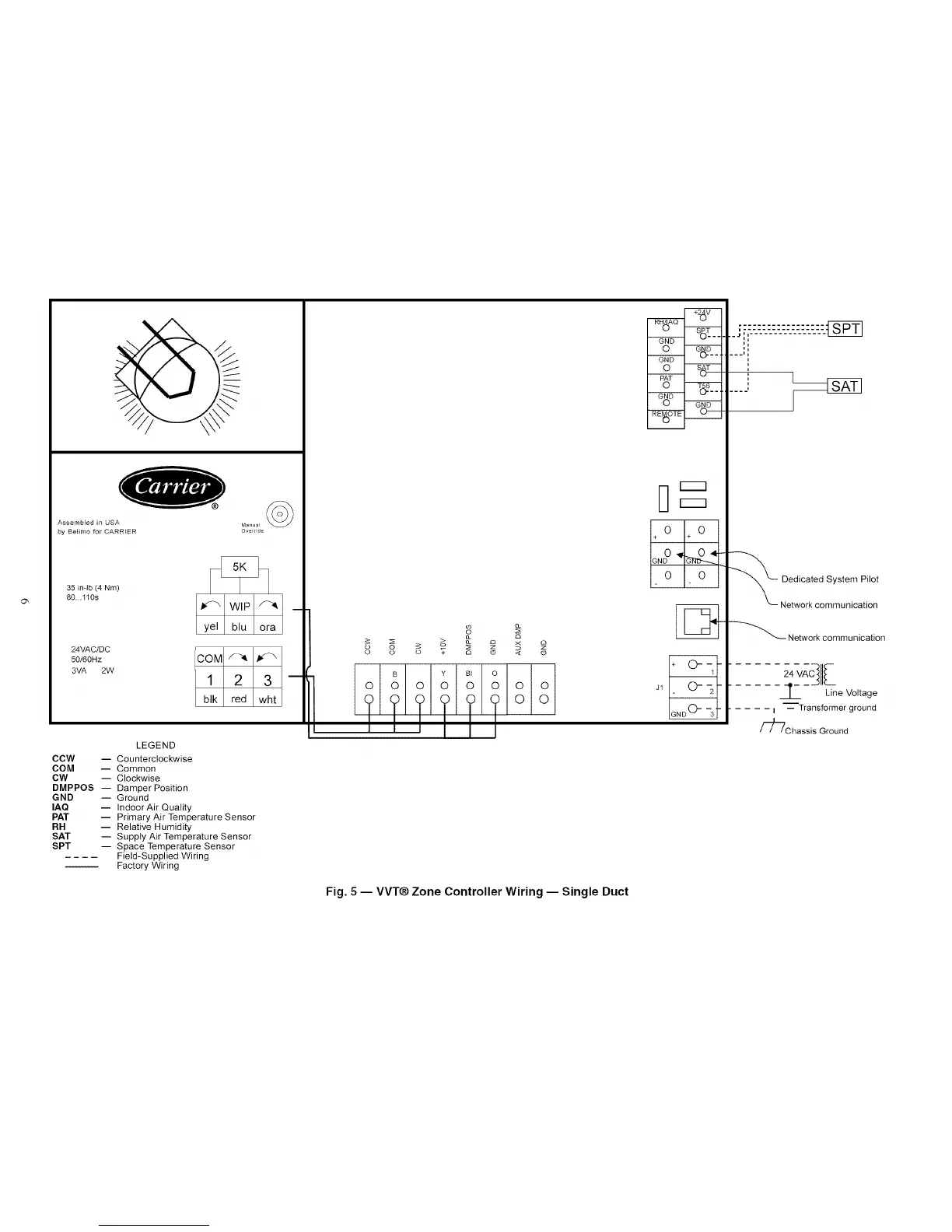
Assembled in USA
by Belimo for CARRIER
Manua[
Override
35 inqb (4 Nm)
80..I10s
24VAC/DC
50/60Hz
3VA 2W
COM _
1 3 --
blk red wht
COW
COM
CW
DMPPOS --
GND
IAQ
PAT
RH
SAT
SPT
LEGEND
Counterclockwise
Common
Clockwise
Damper Position
Ground
Indoor Air Quality
Primary Air Temperature Sensor
Relative Humidity
Supply Air Temperature Sensor
Space Temperature Sensor
Field-Supplied Wiring
Factory Wiring
+Sv
GND
GND
o ssT
PAT
o
GND
©
R E_)OT------i-_ _-
D
o o z
._£-...............
ii
ii
ii
___11
i
....
_'-- Dedicated System Pilot
_- Network communication
_ Network communication
24 VAC
i Line Voltage
.... I ----Transformer ground
/_Chassis Ground
Fig. 5 -- VVT® Zone Controller Wiring -- Single Duct

Table of Contents

Related product manuals