EasyManua.ls Logo

Carrier 59SC2A - Page 36

Carrier 59SC2A
84 pages
Print Icon
To Next Page IconTo Next Page
To Next Page IconTo Next Page
To Previous Page IconTo Previous Page
To Previous Page IconTo Previous Page
Loading...
59SC2A
TWINNING
AND/OR
BLOWER
OFF-DELAY
COMPONENT
TEST
TERMINAL
J2
JUMPER
/
BLOWER
OFF-DELAY
Sa
HUMIDIFIER
TERMINAL
(24-VAC
0.5
AMP
MAX.)
24-V
THERMOSTAT
©
TERMINALS
RO
<3
.
TRANSFORMER
24-VAC
CONNECTIONS
3-AMP
FUSE
OO
SNIWLS
O
LED
OPERATION
&
9)
DIAGNOSTIC
LIGHT
aay
|
PL1-LOW
VOLTAGE
MAIN
HARNESS
CONNECTOR
1
15-VAC(L2)NEUTRAL——1
CONNECTIONS
b
EAC-1
TERMINAL
115-VAC
1.0
AMP
MAX.)
COO
[==]
fe)
ear
sede
J
=
=a
=
SPARE-1
SPARE-2
SPARE-3
=
oy,
PR-1
PL2
4
ee
SPARE-1
O
SPARE-2
115
VAC
(L1)
LINE
PL2-HOT
SURFACE
SBARE-3
VOLTAGE
CONNECTION
IGNITER
&
INDUCER
BLOWER
SPEED
MOTOR
CONNECTOR
SELECTION
TERMINALS
A11619
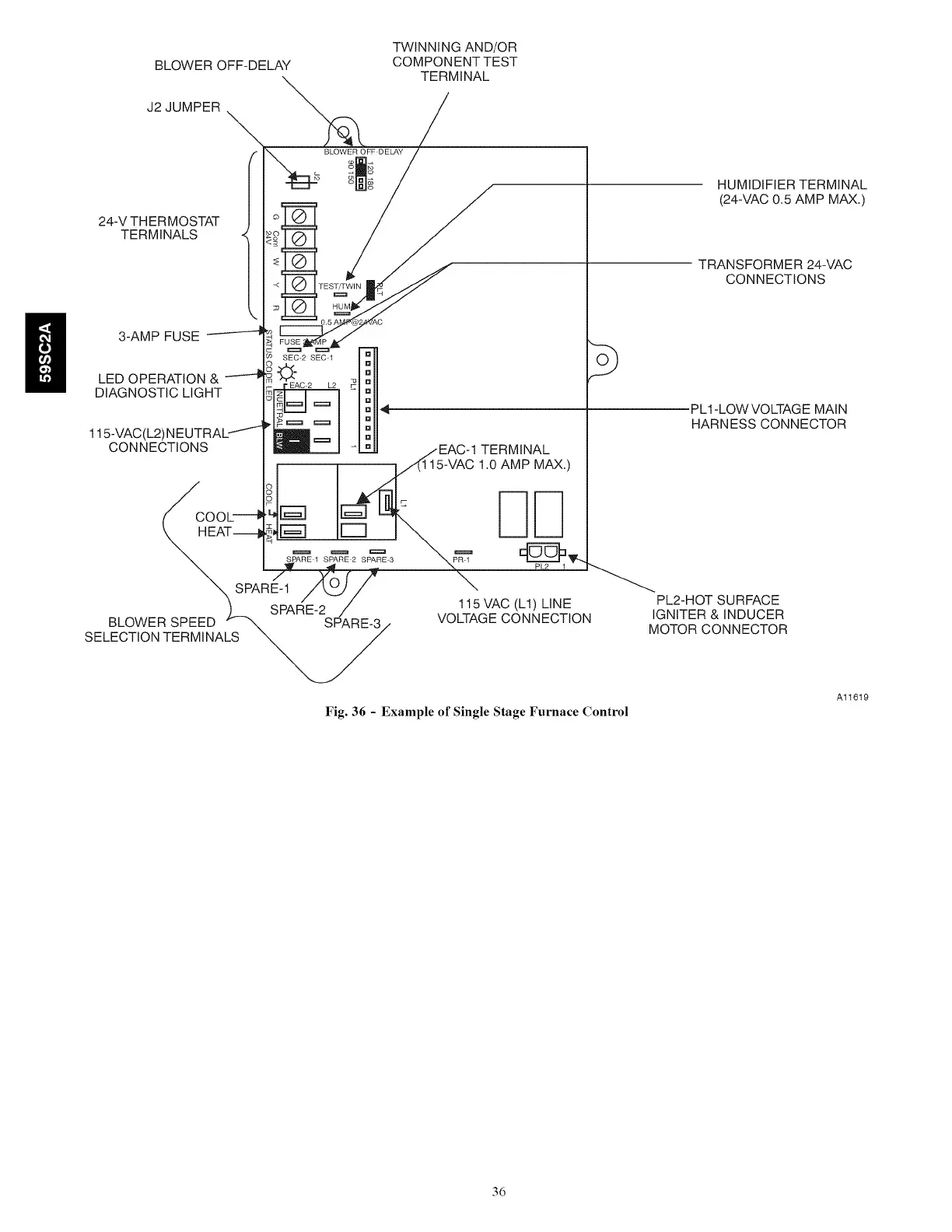
Fig.
36
-
Example
of
Single
Stage
Furnace
Control

Other manuals for Carrier 59SC2A

Related product manuals