EasyManua.ls Logo

Carrier AquaForce 30XW-V - 3 - DIMENSIONS, CLEARANCES; 3.1 30 XW-V;30 XWHV 580-880

Carrier AquaForce 30XW-V
36 pages
To Next Page IconTo Next Page
To Next Page IconTo Next Page
To Previous Page IconTo Previous Page
To Previous Page IconTo Previous Page
Loading...
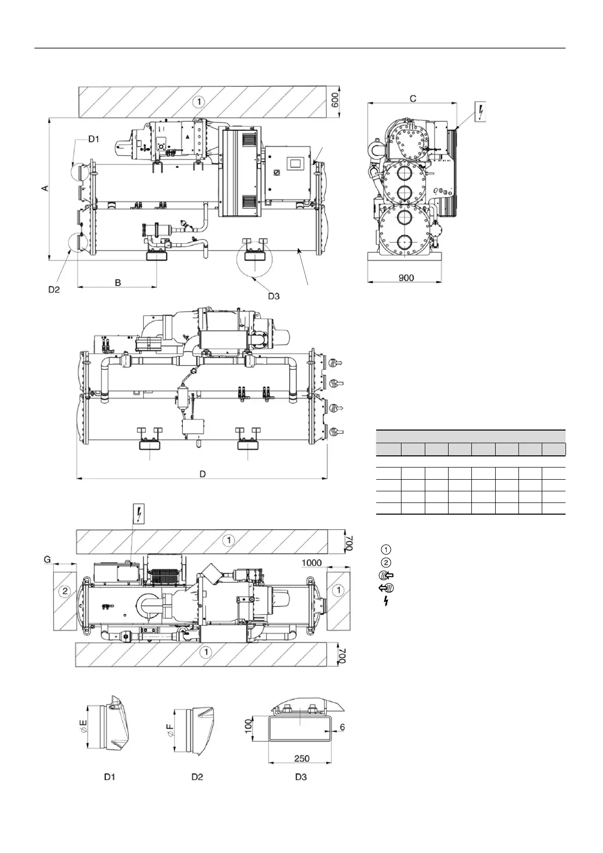
3 - DIMENSIONS, CLEARANCES
3.1 - 30XW-V/30XWHV 580-880
Evaporator
Condenser
NOTES:
Drawings are not contractually binding.
Before designing an installation, consult
the certified dimensional drawings
supplied with the unit or available on
request.
For the positioning of the xing points,
weight distribution and centre of gravity
coordinates refer to the dimensional
drawings.
Dimensions in mm
A B C D E F G
30XW-V/30XWHV
580 1743 968 1087 3059 168,3 168,3 2900
630 1743 968 1087 3059 168,3 168,3 2900
810 1950 1083 1237 3290 219,1 219,1 3100
880 1950 1083 1237 3290 219,1 219,1 3100
Legend
All dimensions are given in mm.
Required clearances for maintenance
Recommended space for tube removal
Water inlet
Water outlet
Power supply connection
10

Table of Contents

Related product manuals