EasyManua.ls Logo

Carrier Vector 1550-11 - Page 46

Carrier Vector 1550-11
270 pages
Print Icon
To Next Page IconTo Next Page
To Next Page IconTo Next Page
To Previous Page IconTo Previous Page
To Previous Page IconTo Previous Page
Loading...
62-61753-21
2-22
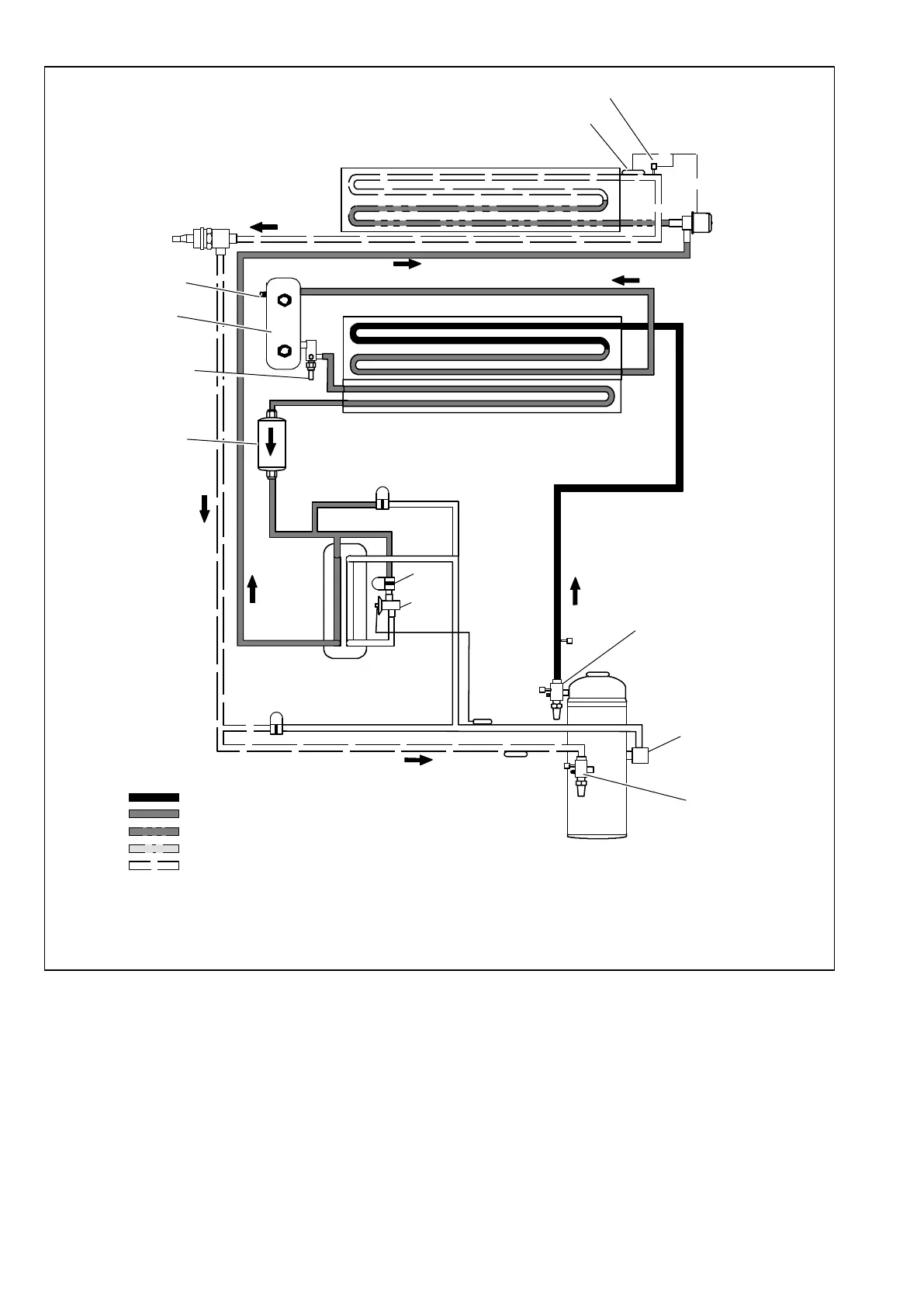
CSMV
COMPRESSOR
SUCTION
SERVICE VALVE
EVXV
USV
COMPRESSOR
ECONOMIZER
CONNECTION
LIQUID LINE
SERVICE VALVE
COMPRESSOR
DISCHARGE
SERVICE VALVE
CONDENSER
SUBCOOLER
FILTER DRIER
LIV
ESV
TXV
HIGH PRESSURE VAPOR
HIGH PRESSURE LIQUID
LOW PRESSURE LIQUID
LOW PRESSURE VAPOR
MEDIUM PRESSURE VAPOR
RECEIVER
RELIEF VALVE
EVAPORATOR
EVOT
EVOP
ECONOMIZER HEAT
EXCHANGER
Figure 2-9. Refrigerant Circuit Standard Mode

Table of Contents

Related product manuals