EasyManua.ls Logo

Chamberlain 98022 - Planification; Préparation

Chamberlain 98022
132 pages
Print Icon
To Next Page IconTo Next Page
To Next Page IconTo Next Page
To Previous Page IconTo Previous Page
To Previous Page IconTo Previous Page
Loading...
3
Préparation
Examinez votre région pour voir si l’une des conditions ci-dessous s’applique à votre installation.
En fonction de vos besoins, des matériaux supplémentaires peuvent être nécessaires.
CET OUVRE-PORTE DE GARAGE EST COMPATIBLE AVEC CE QUI SUIT:
Portes qui utilisent une barre de torsion et des ressorts. La barre de torsion doit avoir un
diamètre de 2,5cm (1po). NON compatible avec les tambours à enroulement inverse.
Portes sectionnelles à levage standard utilisant des tambours de 4 à 6 po (10 à 15
cm) de diamètre.
Tambours droits de 4-6po (10-15cm)
Des tambours de 3 à 3,9pouces (7,6 à 9,9cm) peuvent être utilisés pour les portes
pesant d’un poids maximum de 430lb (195,4kg)
Portes sectionnelles à levage élevé (d’une hauteur maximum de 54po [137,2cm])
et à levage standard d’une hauteur maximum de 14pi (4,3m).
Portes jusqu’à 5,5m (18pi) de large.
Portes sectionnelles à grande levée utilisant un tambour conique de 8 po (20 cm) de
diamètre.
Portes sectionnelles à levée verticale
utilisant des tambours coniques de 8
po (20 cm) de diamètre..
Portes jusqu’à 16,7mètres carrés
(180pieds carrés).
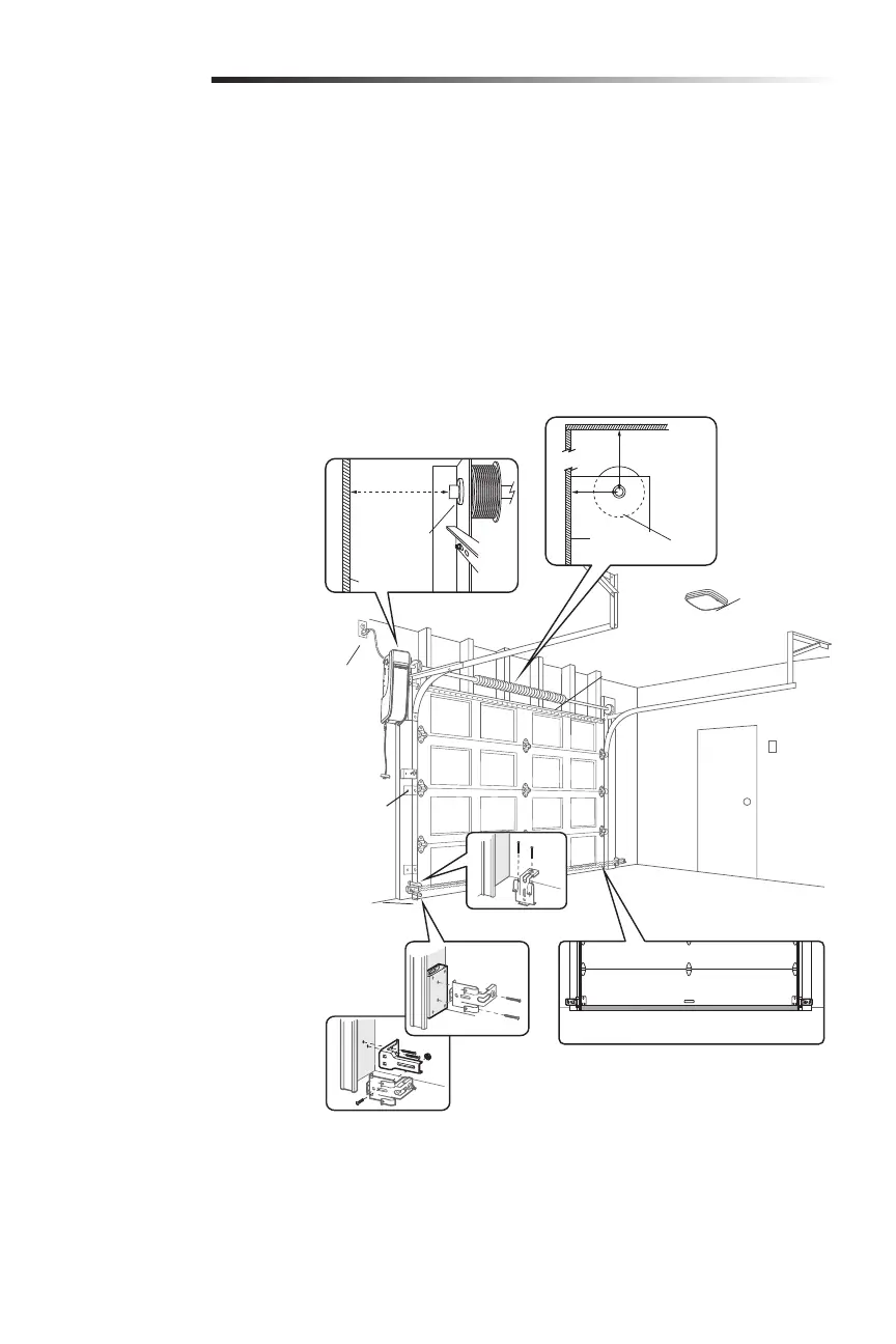
Examinez ou inspectez la zone d’installation
proposée. Déterminez si l’opérateur de
porte sera installé sur le côté gauche ou
droit de la porte. Sélectionnez le côté
qui répond aux exigences énumérées
ci-dessous.
a. Un minimum de 6,4cm (8,5po) entre
le mur et l’extrémité de la barre de
torsion.
b. Un minimum de 7,6cm (3po) entre
le plafond et le centre de la barre de
torsion.
c. Un minimum de 21,6cm (8,5po)
entre le mur latéral du (ou
l’obstruction) et l’extrémité de la barre
de torsion.
d. La barre de torsion doit dépasser d’au
moins 3,81cm (1,5po) la plaque
d’appui. Cela peut varier en fonction
des exigences de votre installation.
e. Une prise électrique est nécessaire
à moins de 1,83m (6pi) de la zone
d’installation. Si la prise n’existe pas,
contactez un électricien qualifié.
f. Selon la construction, des supports
d’extension ou des blocs de bois
peuvent être nécessaires pour
installer les capteurs d’inversion de
sécurité et le moniteur de tension de
câble.
g. Le montage au sol (autre option)
des capteurs d’inversion de sécurité
nécessite du matériel (non fourni).
h. Vérifiez le joint au bas de la porte.
Tout écart entre le sol et le bas
de la porte ne doit pas dépasser
6mm (1/4po). Sinon, le système
d’inversion de sécurité risque de ne
pas fonctionner correctement.
REMARQUE: Inspectez la barre de torsion
lorsque la porte est levée et abaissée. Il est
important qu’il n’y ait pas de mouvement
perceptible de haut en bas ou de gauche à
droite. Si le mouvement n’est pas corrigé,
la durée de vie de l’opérateur de porte sera
fortement réduite.
a
b
h
c
d
e
f
g
Barre
de
torsion
6,4cm
(2 1/2po)
7,6 cm
(3 po)
Mur ou
obstruction
Barre de
torsion
8,5po
(21,6cm)
Capteur
d’inversion
de sécurité
Lumière à
distance DEL
myQ
Verrou
automatique
de porte
Ressort de porte
Planification

Table of Contents

Other manuals for Chamberlain 98022

Related product manuals