EasyManua.ls Logo

Cisco UCS C220 M5 - Replacing HHHL Form-Factor NVMe Solid State Drives; HHHL SSD Population Guidelines; HHHL Form-Factor NVMe SSD Requirements and Restrictions

Cisco UCS C220 M5
86 pages
To Next Page IconTo Next Page
To Next Page IconTo Next Page
To Previous Page IconTo Previous Page
To Previous Page IconTo Previous Page
Loading...
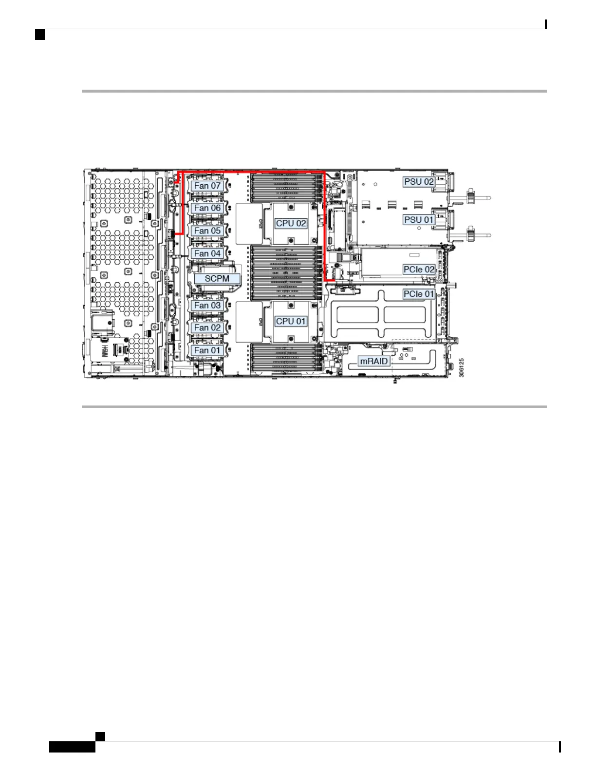
Step 1 Connect the two connectors on one end of the cable to the PCIE-A1 and PCIE-A2 connectors on the drive backplane.
Step 2 Route the cables through the chassis cable guides to the rear of the server as shown below.
Step 3 Connect the single connector on the other end of the cable to the PCIE-FRONT connector on PCIe riser 2.
Figure 10: PCIe Cabling to Drive Backplane
Replacing HHHL Form-Factor NVMe Solid State Drives
This section is for replacing half-height, half-length (HHHL) form-factor NVMe SSDs in the PCIe slots. To
replace 2.5- or 3.5-inch NVMe SSDs in the front-panel drive bays, see Replacing a Front-Loading NVMe
SSD, on page 16.
HHHL SSD Population Guidelines
Observe the following population guidelines when installing HHHL form-factor NVMe SSDs:
Two-CPU systems—You can populate up to 2 HHHL form-factor SSDs, using PCIe slots 1 2.
One-CPU systems—In a single-CPU system, PCIe riser 2/slot 2 is not available. Therefore, the maximum
number of HHHL form-factor SSDs you can populate is 1, in PCIe slot 1.
HHHL Form-Factor NVME SSD Requirements and Restrictions
Observe these requirements:
All versions of the server support HHHL form-factor NVMe SSDs.
Observe these restrictions:
Maintaining the Server
20
Maintaining the Server
Replacing HHHL Form-Factor NVMe Solid State Drives

Table of Contents

Related product manuals