EasyManua.ls Logo

CKD SHD3025 - Replacement of Desiccant Vessel; Replacement of Silencer

Default Icon
27 pages
Print Icon
To Next Page IconTo Next Page
To Next Page IconTo Next Page
To Previous Page IconTo Previous Page
To Previous Page IconTo Previous Page
Loading...
<SM-13024-A>
14
Silencer
Silencer
media
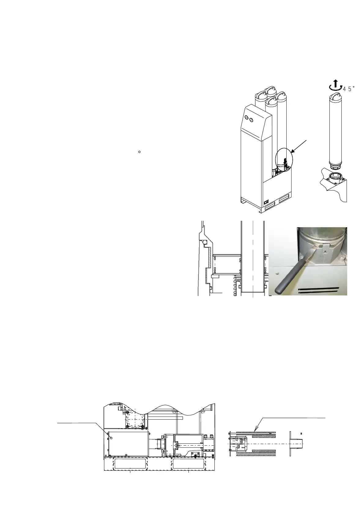
6-1Replacementofdesiccantvessel
Aspring,desiccant,porousplate,filter,etc.areassembledintothedesiccantvessel,andthis
desiccantvesselismountedonthemainbody.Thedesiccantvesselneedstobereplacedat
reference intervals of 2 years. since it has shown the of desiccant
exchange method to 「8-6 list of spare parts」, it is chosen of a
visitor.
1)
Stoptheoperationwhilereferringtosection5-2,Operation
stop.
2)
Loosen the lock set screw at the lower portion of the
desiccantvesselandslideitdownward.
3)
Turnthedesiccantvessel45 andpullitoutupward.
Note)Ifthevesseldoesnotmovesteadilyandthecylinder
cannotrotate,pushthetoolattachedtotheproductintothe
gapasshownontheright.Whenthepressureremains,the
pressure is released and the cylinder moves steadily,
allowingittorotate.
(Relievethepressureremainingintheshadedarea)
4) Please exchange by the selected drier
exchangemethod.
5)
CheckthattheO-ringismountedonanew
desiccant vessel and that the grease is
appliedtotheO-ring. Mountanewvessel
inthereverseorderofdisassembly.
6)
After the new vessel has been mounted
completely, slide the lock upward and
securethelockusingthesetscrew.( Pleasetightenat2.5Nm)
6-2Replacementofsilencer
Changeoneyearforanaim.
1)
Removethefrontpanelandsidepanel.
2)
Removethesilencerusinganappropriatetool,suchaspipewrench.
3)
DisassemblethesilencerasshownintheFig.andreplacethesilencermediapartwitha
newone.
4)
Reassemblethesilencerinthereverseorderofdisassembly,andthenmountthepanels.
Lock

Related product manuals