EasyManua.ls Logo

ClimateMaster Tranquility TR Series - Page 59

ClimateMaster Tranquility TR Series
96 pages
Print Icon
To Next Page IconTo Next Page
To Next Page IconTo Next Page
To Previous Page IconTo Previous Page
To Previous Page IconTo Previous Page
Loading...
59
THE SMART SOLUTION FOR ENERGY EFFICIENCY
Tranquility
®
(TR) Series
Rev.: November 2, 2020
climatemaster.com
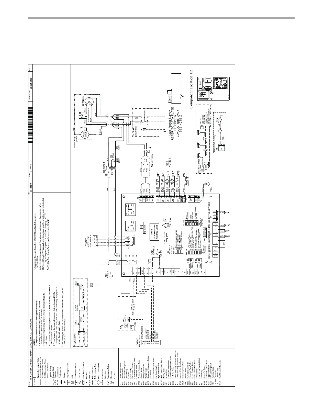
Typical Wiring Diagram – Single Phase TR Units Sizes 015 - 060
with DXM2 Control and ECM-CV Fan Motor

Related product manuals