EasyManua.ls Logo

ClimateMaster Tranquility TR Series - Page 60

ClimateMaster Tranquility TR Series
96 pages
Print Icon
To Next Page IconTo Next Page
To Next Page IconTo Next Page
To Previous Page IconTo Previous Page
To Previous Page IconTo Previous Page
Loading...
60
CLIMATEMASTER WATER-SOURCE HEAT PUMPS
Tranquility
®
(TR) Series
Rev.: November 2, 2020
ClimateMaster Water-Source Heat Pumps
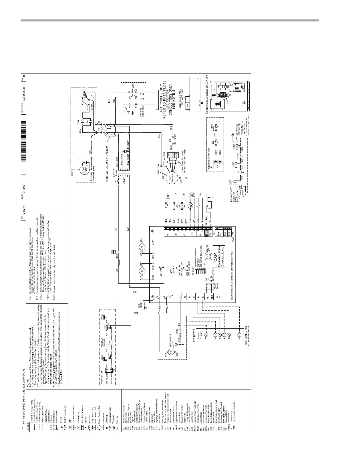
Typical Wiring Diagram - Single Phase TR Units Sizes 015 - 060
with CXM Control and PSC Fan Motor

Related product manuals