EasyManua.ls Logo

Conel FLOW CUT BOX - 19 Kapcsolási Rajz

Conel FLOW CUT BOX
Print Icon
To Next Page IconTo Next Page
To Next Page IconTo Next Page
To Previous Page IconTo Previous Page
To Previous Page IconTo Previous Page
Loading...
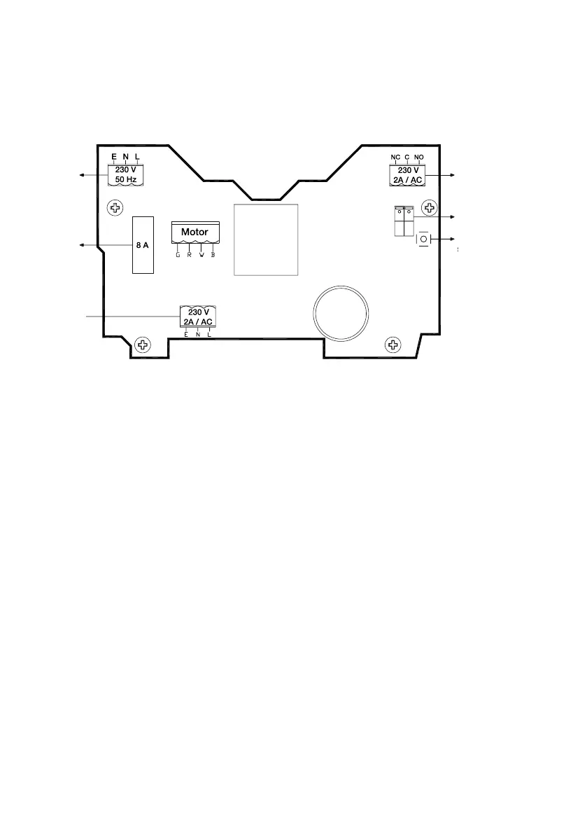
19.
Kapcsolási rajz
15. ábra
*Normálműködésközbenaszelep230VAC(2A)feszültségalaállésilyenformánnyitoállásban
marad.Magasvízszintvagyáramkimaradáseseténaszelepzáródik(leállítjaavízbeáramlását)
*
Teljesí-
tmény
Bizto-
síték
*Vezér-
lőszelep
Transzfor-
mátor
Riasztás
Potenciál-
mentes
Nyomáskap-
csoló
Nyomáskap-
csolóteszt
144

Table of Contents