EasyManua.ls Logo

Cooper CF1100 - Page 93

Cooper CF1100
117 pages
Print Icon
To Next Page IconTo Next Page
To Next Page IconTo Next Page
To Previous Page IconTo Previous Page
To Previous Page IconTo Previous Page
Loading...
93
Security House,
Vantage Point Business Village,
Mitcheldean,
Glos. GL17 0SZ
Tel: 01594 541900
www.cooperfire.co.uk
Installation Guide for
4 Way Sounder Controller Unit
CSC354
CSC354 - Specification:
Installation:
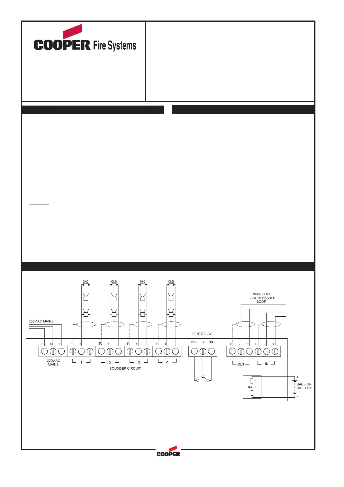
Wiring
Each unit terminal connector is suitable for clamping a
single cable conductor up to a maximum of 2.5mm².
General
The CSC354 unit requires a permanent 230Vac supply.
Addressing of the unit is not required (see control panel
operation for details)
DOC. REF.: PINSTCSC354
Notes:
1. Cable earth screen must be connected to its adjacent earth terminal.
2. The end of line resistor must always be fitted, even if sounder circuit is not used.
3. Sounder circuits are monitored for wiring open and short circuit.
4. Output fire relay is a set of changeover volt free-contacts and is not monitored.
5. This unit should only be finally connected to the 230Vac mains supply and battery, during
system commissioning
Wiring Schematic:
Remove the front cover of the unit
Mount the back box in the required position.
Install wiring through the pre-drilled holes ensuring
care is taken not to damage the circuit board.
Connect the unit as per diagram below.
Refit front cover.
230Vac
0.5A
24Vdc
24hrs + 30 minutes ringing
250µA
Auto addressed
0.8Amp (max)
3.2A (4 channels)
30Vdc
1A (resistive)
0.5A (inductive)
-10 to +45C
0 to 95% non condensing
IP40
EN54:Pt 2 and 4
BS5839:Pt 1 (installation)
CE Marked
2x12V, 4Ah, SLA
PC\ABS\Steel
300(w)x300(h)x74(d) mm
0.5 to 2.5mm²
Draka - FIRETUF
Pirelli - FP200
MICC
230Vac
0.5A
24Vdc
24hrs + 30 minutes ringing
250µA
Auto addressed
0.8Amp (max)
3.2A (4 channels)
30Vdc
1A (resistive)
0.5A (inductive)
-10 to +45C
0 to 95% non condensing
IP40
EN54:Pt 2 and 4
BS5839:Pt 1 (installation)
CE Marked
2x12V, 4Ah, SLA
PC\ABS\Steel
300(w)x300(h)x74(d) mm
0.5 to 2.5mm²
Draka - FIRETUF
Pirelli - FP200
MICC
Mains supply voltage:
Mains current consumption:
Operating voltage:
Standy period:
Quiescent Current:
Addressing mode:
Sounder circuit output:
Maximum sounder load:
Fire relay switching voltage
Maximum switching current
Operating Temperature:
Humidity:
IP Rating:
Standards:
EMC:
Battery:
Materials:
Dimensions:
Cable Size (Min-Max:)
Recommended Cable Types:
Mains supply voltage:
Mains current consumption:
Operating voltage:
Standy period:
Quiescent Current:
Addressing mode:
Sounder circuit output:
Maximum sounder load:
Fire relay switching voltage
Maximum switching current
Operating Temperature:
Humidity:
IP Rating:
Standards:
EMC:
Battery:
Materials:
Dimensions:
Cable Size (Min-Max:)
Recommended Cable Types:
1
2
3
4
5
1
2
3
4
5

Related product manuals