EasyManua.ls Logo

Corken D791 - Outline Dimensions

Corken D791
52 pages
Print Icon
To Next Page IconTo Next Page
To Next Page IconTo Next Page
To Previous Page IconTo Previous Page
To Previous Page IconTo Previous Page
Loading...
5-5/8
(14.3)
21-3/16
(53.8)
2-1/8
(5.4)
15 (38.1)
4-3/4
(12.1)
14-1/2 (36.8)
5-1/2
(14.1)
13-7/16
(34.1)
4 (10.2)
2-9/16 (6.5)
35-5/8
(90.5)
42-7/8
(108.9)
46
(116.8)
31-3/8
(79.7)
8-1/4
(21)
1 (2.5)
5-3/8
(13.7)
5-3/8
(13.7)
Adjustable head
1st stage
outlet
(2" weld
flange)
1st stage inlet
(2" weld flange)
1st stage
inlet
(2" weld
flange)
2nd stage outlet
(2" weld flange)
Suction valve
unloaders
(optional)
1/4ā€ NPT
drain
Crankcase
oil heater
(optional)
Four 9/16 (1.4)
diameter
holes
20
(50.8)
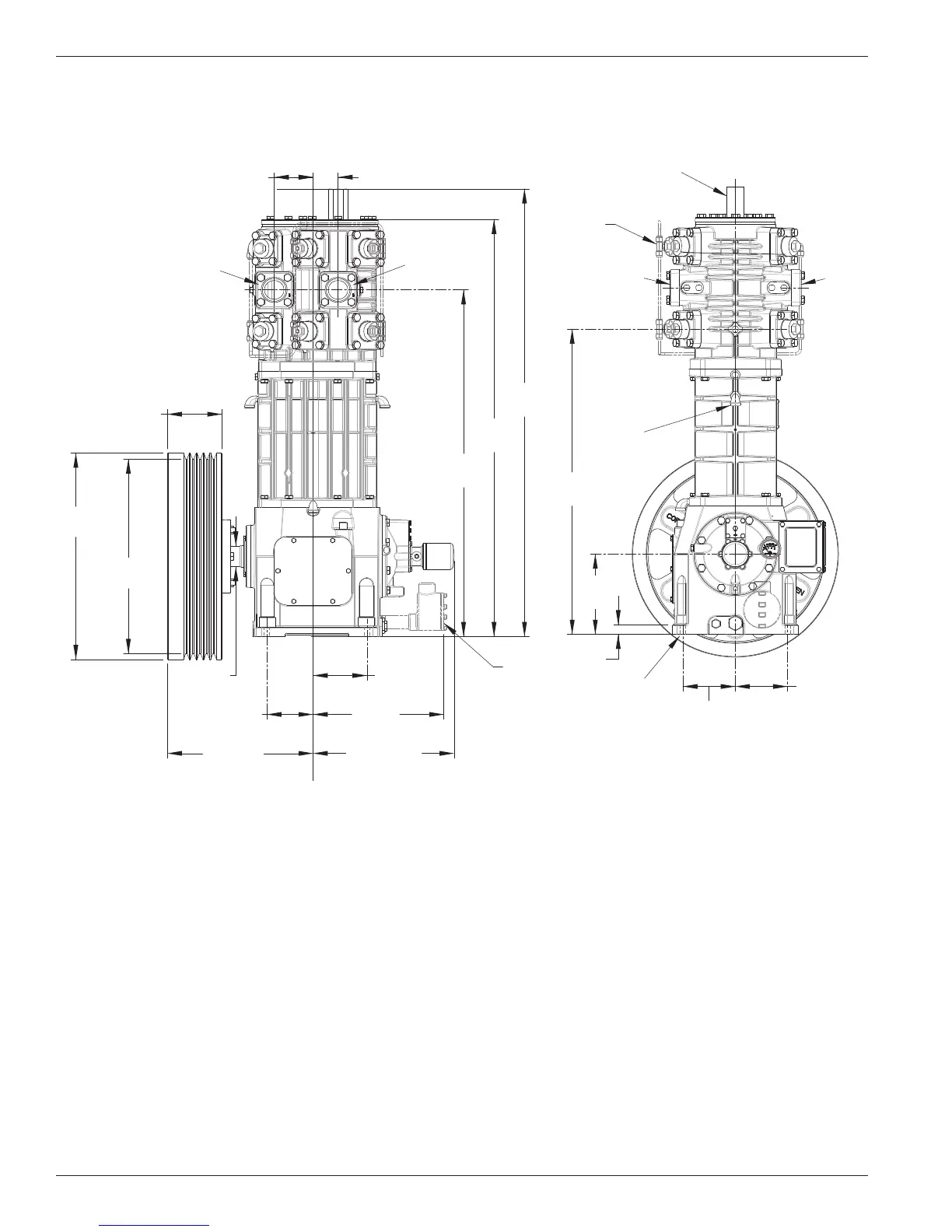
Appendix C—Outline Dimensions
Model D791 (Two Stage) Bare Compressor with Flywheel
Inches (Centimeters)
C. Outline Dimensions
24

Related product manuals