EasyManua.ls Logo

Corken D791 - Page 25

Corken D791
52 pages
Print Icon
To Next Page IconTo Next Page
To Next Page IconTo Next Page
To Previous Page IconTo Previous Page
To Previous Page IconTo Previous Page
Loading...
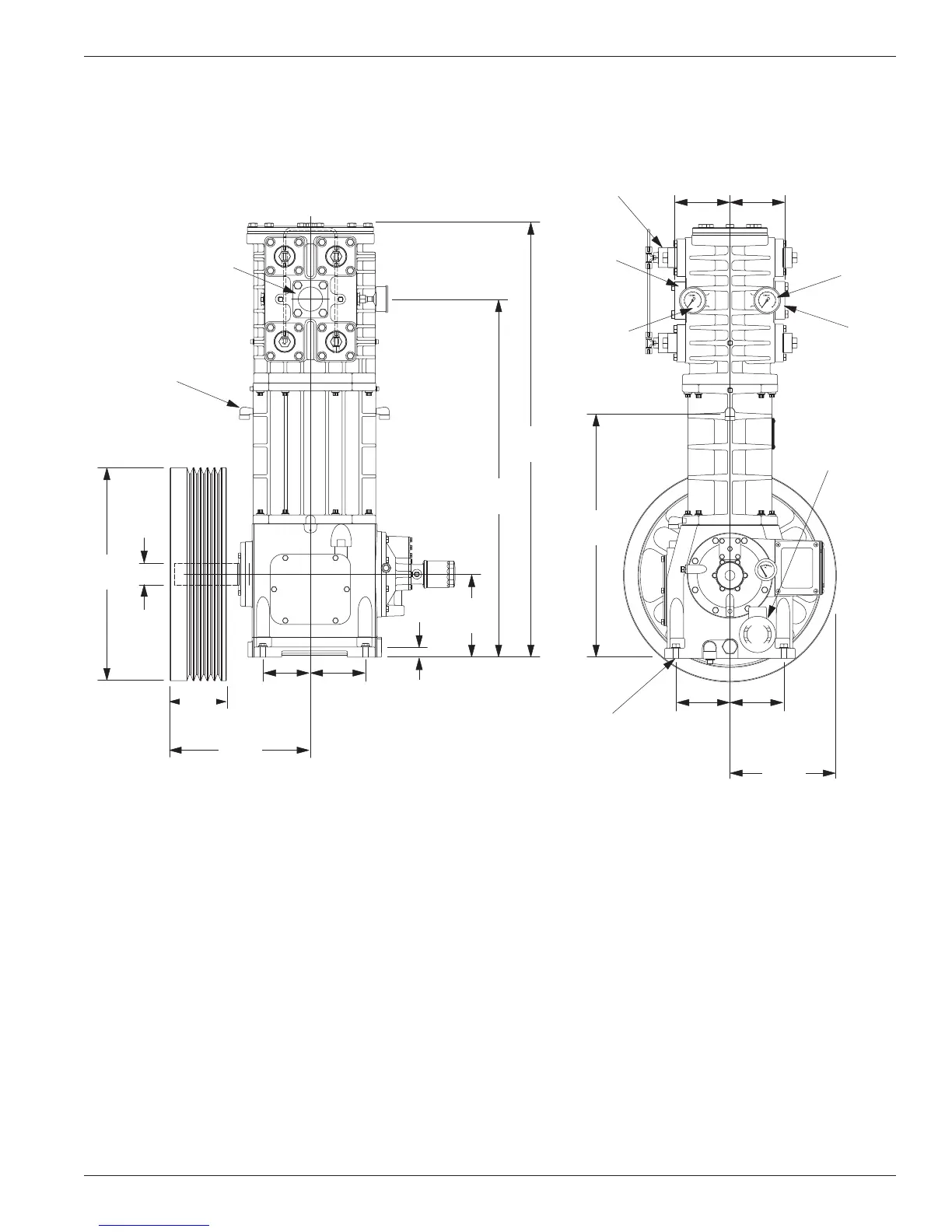
Suction
valve unloaders
(optional)
Inlet
(2" weld
flange)
9-16" (1.4)
Hole Diameter
Inlet
pressure
guage
Outlet
pressure
gauge
Outlet
(2" weld
flange)
Crankcase heater
(optional)
2-1/8"
(5.3)
8-1/4"
(20.9)
35-5/8"
(90.4)
43-1/4"
(109.9)
Inlet
(2" weld
flange)
1/4" NPT drain
24-15/32"
(62.1)
21.2"
(53.8)
5-5/8"
(14.3)
13-1/4"
(33.6)
4-3/4"
(12.0)
1"
(2.5)
5-1/2"
(13.9)
5-3/8"
(13.6)
10-1/4"
(26.0)
5-3/8"
(13.6)
5-1/2"
(13.9)
5-1/2"
(13.9)
Appendix COutline Dimensions
Model D891 (Single Stage) Bare with Flywheel
Inches (Centimeters)
25

Related product manuals