EasyManua.ls Logo

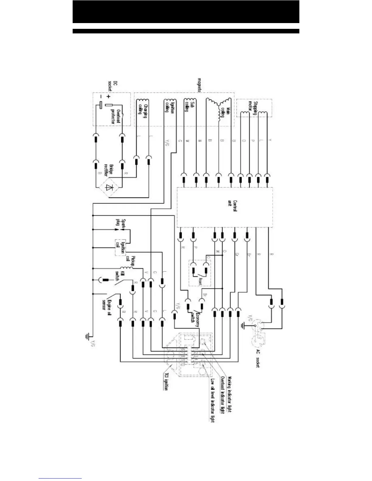
Cromtech Outback CTG2500i - Wiring Diagram

Cromtech Outback CTG2500i
36 pages
Print Icon
To Next Page IconTo Next Page
To Next Page IconTo Next Page
To Previous Page IconTo Previous Page
To Previous Page IconTo Previous Page
Loading...
WIRING DIAGRAM
Pg. 33