EasyManua.ls Logo

Crown Macro-Tech MA-5002VZ - Page 69

Crown Macro-Tech MA-5002VZ
140 pages
Print Icon
To Next Page IconTo Next Page
To Next Page IconTo Next Page
To Previous Page IconTo Previous Page
To Previous Page IconTo Previous Page
Loading...
MA-5002VZ Service Manual130446-1 Rev A
Exploded View Parts 7-25
©2000 Crown International, Inc.
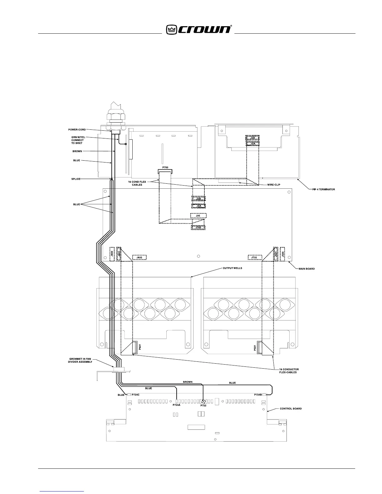
Figure 7.14 Wiring Diagram #2

Table of Contents

Other manuals for Crown Macro-Tech MA-5002VZ

Related product manuals