EasyManua.ls Logo

Culligan C100 - Page 34

Culligan C100
61 pages
Print Icon
To Next Page IconTo Next Page
To Next Page IconTo Next Page
To Previous Page IconTo Previous Page
To Previous Page IconTo Previous Page
Loading...
C100 Manual
Page 33 - Revision:EU-2020-10-13
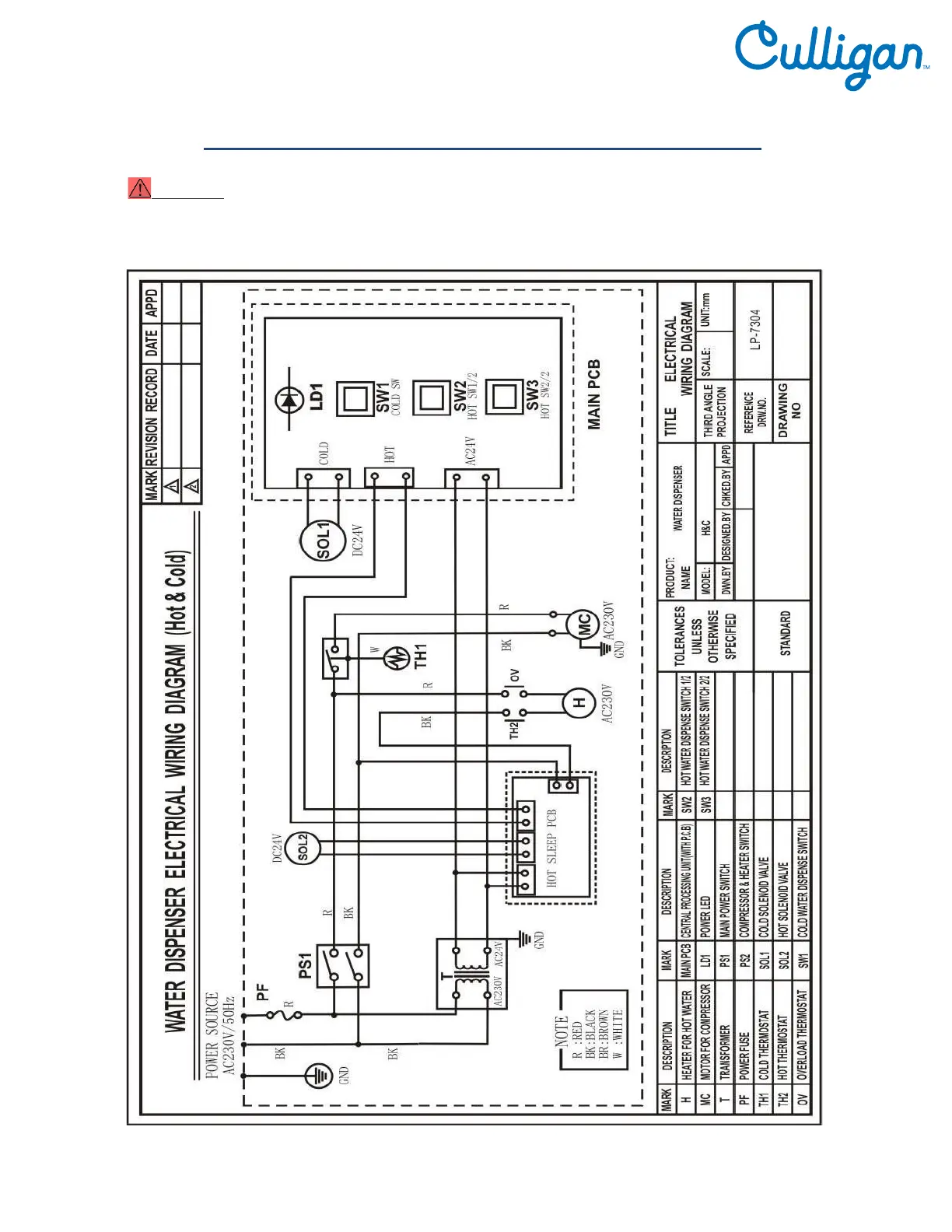
C100 WATER ELECTRICAL SCHEMATIC DIAGRAM
DANGER! HIGH VOLTAGE ELECTRICAL HAZARD. PCB (Printed Circuit Board) contains High
Voltage. Only trained and qualified technicians should attempt live testing.
220V

Related product manuals