EasyManua.ls Logo

CUMMINS DG set - Location; Room Layout

CUMMINS DG set
30 pages
Print Icon
To Next Page IconTo Next Page
To Next Page IconTo Next Page
To Previous Page IconTo Previous Page
To Previous Page IconTo Previous Page
Loading...
3
GENSET INSTALLATION RECOMMENDATION
A Location
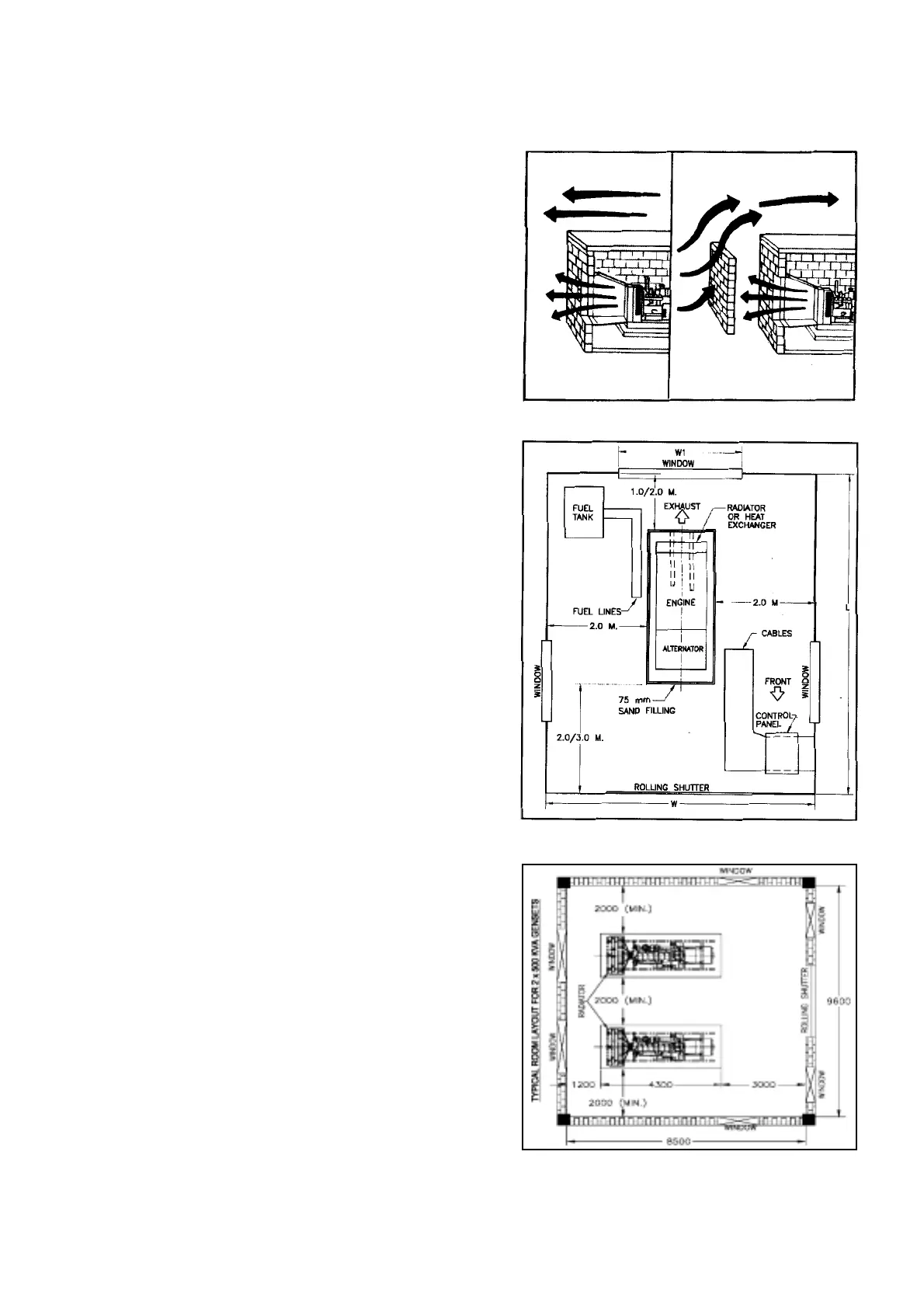
A.1 D.G. room should be located considering wind direction
and there should be no obstruction to natural wind
flow.
A.2 Position the generator set so that the prevailing wind
do not enter into the radiator / exhaust outlet. If this is
not possible, install a wind barrier. Distance of the wind
barrier from the room should be atleast three times
radiator core height.
A.3 Genset should be located away from polluted
atmosphere like acidic fumes, cement dust, stone dust
cotton fibres, furnace chemicals etc. wherever possible.
A.4 In case location is dusty or polluted, contact OEM/
Cummins. Heavy duty air cleaner is must for such
installations. Heat exchanger cooled system is
recommended for such installations as radiator gets
clogged in dusty atmosphere.
A.5 For humid / coastal atmospheric applications, anti
condensation heaters are mandatory for alternator.
A.6 Genset should be nearer to the load centre.
B Room Layout
B.1 Typical 2-meters free space around genset is
recommended for proper heat dissipation and ease of
service. However, to avoid hot air recirculation radiator
cooled engines should have minimum possible space
in the front. Minimum 1.5 meter free space is a must
for 100 KVA and bigger gensets, for smaller gensets it
should be 1 meter.
Room layout is important for :
- Serviceability
- Ventilation
- Ease in operation
- Genset room aesthetics
Please refer Table-1 for typical room sizes.
B.2 In case of multiple sets provide minimum 2 meters
clearance between gensets.
B.3 While making room layout provision should be made
for :
- Cables
- Fuel lines
- Breather vent
- Coolant / lub oil drain
- Raw water lines
- Oil / spares storage
B.4 Future expansion plans should be considered while
deciding room size.
Ref. A.2
Ref. B.1
Ref. B.2

Related product manuals