Page 1-25
seCTion 1 - ProduCT familiarizaTion
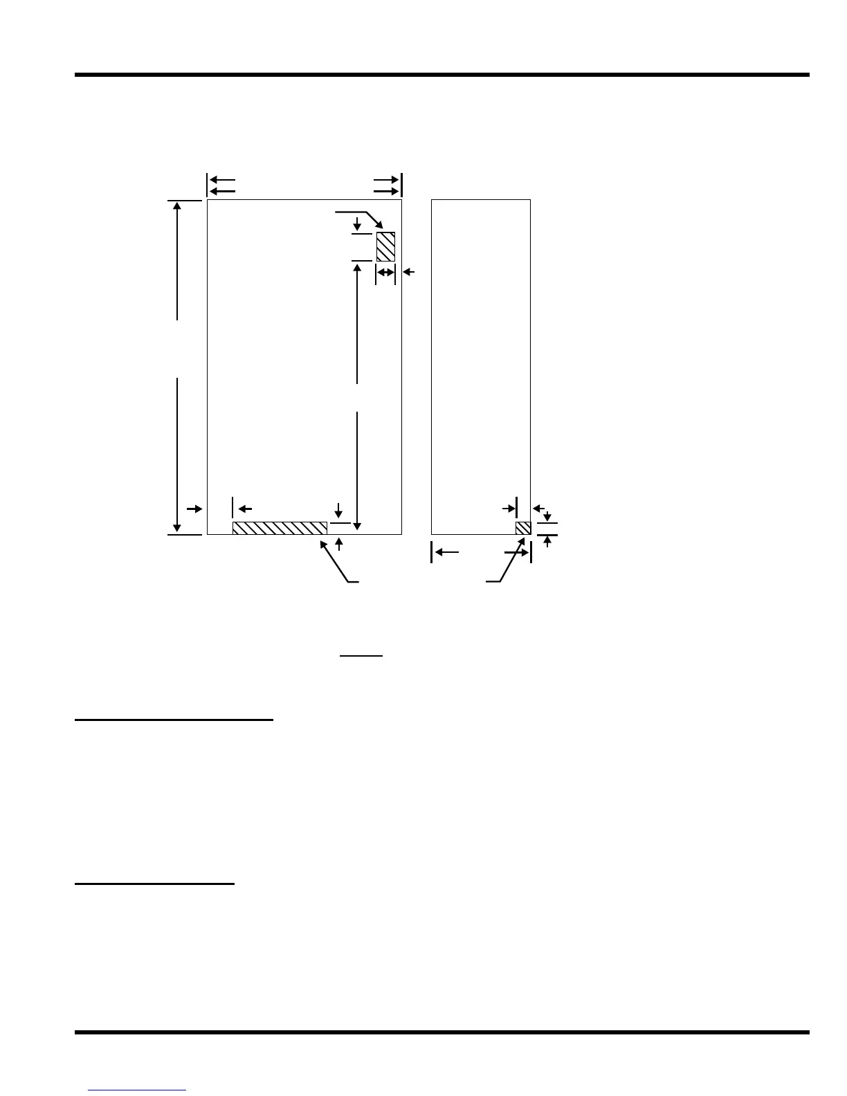
Front View
Side View
(48"/121.9) 47
1/2"/120.7
(42"/106.7) 41
1/2"/105.4
Electrical supply
needs to be located
in this area.
Front Rear
7"
17.78
4"
10.16
75
1/2"
191.8
6"
15.24
3"/7.62
24"
60.96
3"/7.62
3
1/2"
8.89
Water supply needs
to be located in the shaded area.
(48"/121.9
42"/106.7)
83
3/4"
212.7
2"
5.08
Plumbing Connection
Rough in the water line for the location (Fig. 1). Connect a ¼" copper line to
the house supply. Use a shut off valve between the refrigerator and supply. The
shut off should be a drilled saddle valve. Do not use a self-tapping valve. The
ice maker operates on 30 to 120 PSI. Route the water line within a ½" of the
wall and no higher than 3" from the floor. Allow at least 3’ of excess copper
tubing outside the wall or floor for easy connection to the water valve. *Prior to
connection assure that the supply and the copper tubes have been flushed until
the water runs clear.
Reverse Osmosis
Remove the water inlet connector from the “Yellow” valve and attach to the
“Blue” valve. Assure that the water filter bypass plug is in place.
Fig. 1