EasyManua.ls Logo

Daikin MPS - Mamac Panel-Mounted Pressure Transducer

Daikin MPS
82 pages
Print Icon
To Next Page IconTo Next Page
To Next Page IconTo Next Page
To Previous Page IconTo Previous Page
To Previous Page IconTo Previous Page
Loading...
Mamac Panel-Mounted Pressure Transducer
WARNING
Electric shock hazard. Can cause personal injury or equipment
damage.
This equipment must be properly grounded. Connections and
service to the MicroTech III control panel must be performed
only by personnel that are knowledgeable in the operation of
the equipment being controlled.
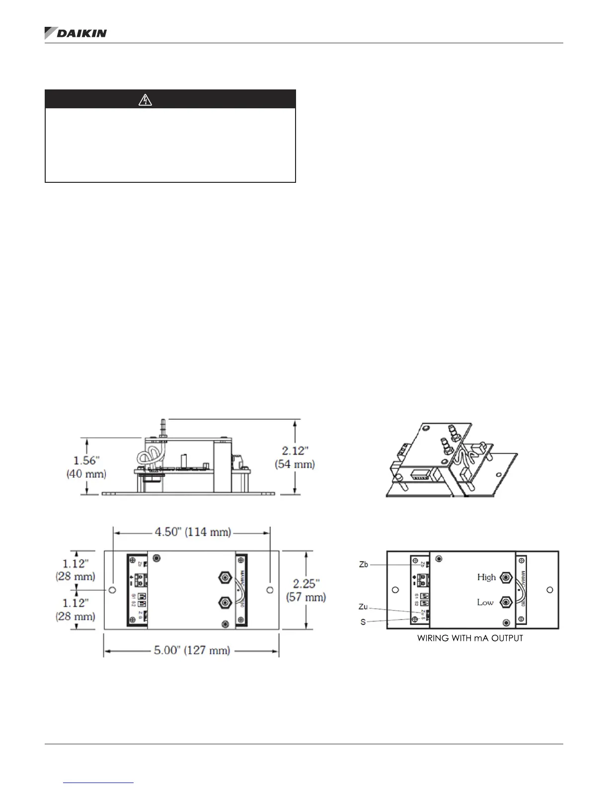
The following describes the proper wiring of these pressure
transducers with mA output.
1. Remove the terminal block by carefully pulling it off the
circuit board.
2. Locate the [+] and [-] terminal markings on the board.
3. Attach the supply voltage to the [+] lead.
4. Connect the 4-mA output ([-] terminal) to the controller’s
input terminal.
5. Ensure that the power supply common is attached to the
common bus of the controller.
6. Re-insert the terminal block to the circuit board and apply
power to the unit.
7. Check for the appropriate output signal using a DVM set
on DC milliamps connected in series with the [-] terminal.
Specications
Accuracy: ± 1% FS
Overpressure: 10 PSID
Supply Voltage: 12–40 VDC
12–35 VAC (VDC output units only)
Supply Current: VDC units — 10mA max.
mA units — 20 mA max.
Enclosure: 18 Ga. C R Steel NEMA 4 (P-65) or panel-mount
chassis
Finish: Baked-on enamel PMS2GR88B
Compensated Temp Control: 25°F – 175°F (-18°C – -80°C)
T.C. Error: ± 0.0125%/°F (± 0.02%/°C)
Operating Temp Range: 0°F – 175°F (-18°C – 80°C)
Media Compatibility: Clean dry air or any inert gas
Environmental: 10 – 90% RH Non-condensing
Wire Size: 12 Ga. max.
Load Impedance: 1.6K ohms max. at 40VDC (mA output units)
1K ohms min. VDC output units)
Weight: Enclosure — 1.0 lbs. (45 kg)
Panel-mount — 0.5 lbs. (25 kg)
Figure 14: Mamac Panel-Mounted Pressure Transducer Dimensions
IM 919-3 • MICROTECH III CONTROLLER 12 www.DaikinApplied.com
desCrIpTIon of operaTIon

Other manuals for Daikin MPS

Related product manuals