EasyManua.ls Logo

Daikin MPS - Page 65

Daikin MPS
82 pages
Print Icon
To Next Page IconTo Next Page
To Next Page IconTo Next Page
To Previous Page IconTo Previous Page
To Previous Page IconTo Previous Page
Loading...
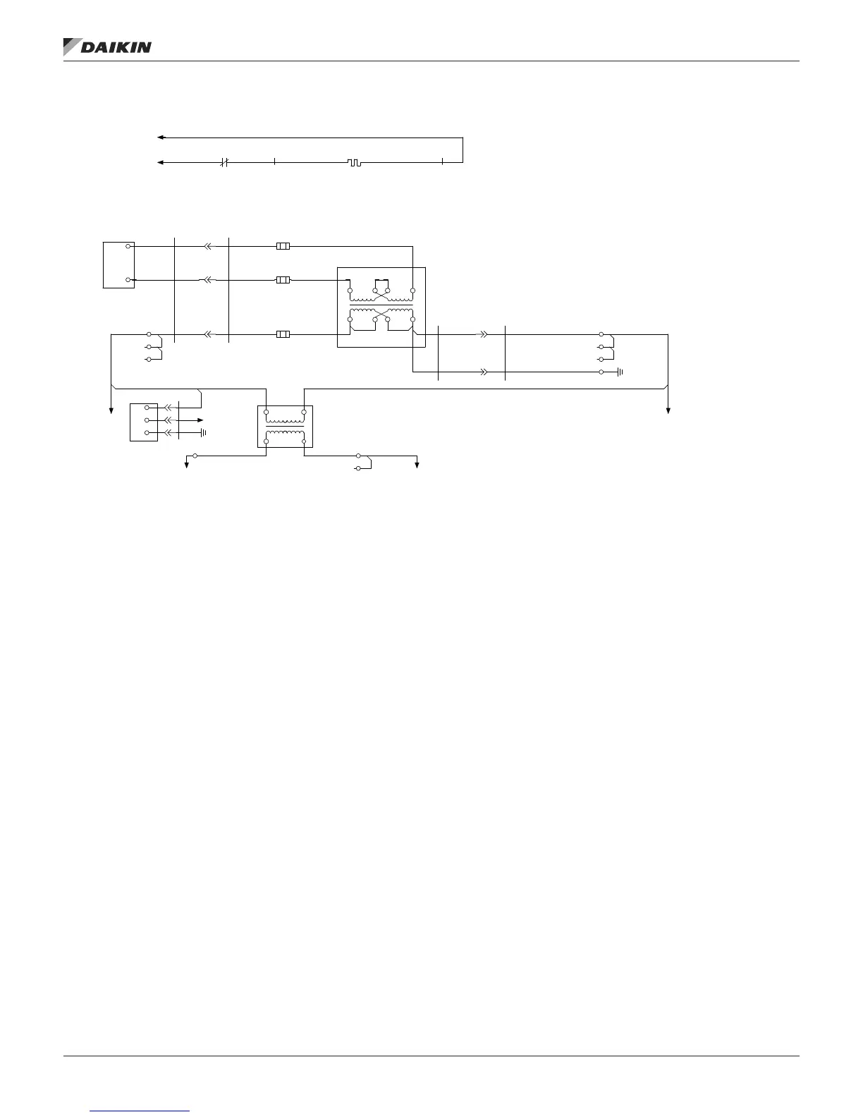
Figure 32 continued: Rebel Electrical Diagram
103
104
105
106
107
108
109
110
111
112
113
114
115
116
117
118
119
120
121
122
123
124
125
126
127
128
129
130
131
132
133
134
135
136
137
138
139
140
141
142
143
144
145
146
147
148
149
150
151
152
153
154
155
156
157
158
159
160
161
162
101
102
163
164
165
CUSTOMER
SUPPLIED
POWER
Wire for CW
phase monitor
277/460V, 3 Phase, 60Hz
277/460V, 3 Phase, 60Hz
277/460V, 3 Phase, 60Hz
277/460V, 3 Phase, 60Hz
X77A
X1AX10A
X41A
X11A
X3A
GFR1
GFR1
X5A
X1AX2A
X5AX3A
X4A
460V PRI.
120V SEC.
24V
120V
GLG1
L1 T1
L2 T2
L3 T3
DS1
103A
105A
104A
PB1
L1
L2
L3
L1
L2
L3
GND
NB
INDOOR_FAN
3
M
GND10
1
2
3
4
PB1
T1
T2
T3
IFN-PI
121A
120D
L1 T1
L2 T2
L3 T3
MMP10
119A
120E
122A
121B
119B
x1 x2
CCH1
MB.HB
1 9
(305)
R-CCH1
112A
CCH1-I
145A
CCH1-I
113A
L1 T1
L2 T2
L3 T3
MMP1
109A
107A
108A
W
V
EVB
(350)
U
V
W GND
CMP1
NB
M
3
LR1
U
A4P
PC0702-1(A)
TB1
8
120C
3
1
12
3
1
3
3
2
1
1
2
P2
P1
A4P-PI
EVB230-I
CMP1-PI
T3
T2
T1
PB1
T2
114B
112A
112A
114A
120B
120A
LR1-I
T3
T1
T2
N
T4
1290VA
L3
L1
L2
T3
T1
1 2
F4A
1 2
F4B
PB1
1 2
0.5A
F4C
TB1
9
TB1
10
TB1
11
114B
GF-I
GFR1
3
GF-I
1
112A
11
125A
126A
124A
3
T4B-I
2
PL24
1
T4A-I
5
109B
6
T4A-I
4
T4B-I
112A 112A
107B
T4A-I
T4B-I
114A
T4B-I
108B
7
T4A-I
108B
107B
114B114B
113A
114A
109B
113A
T4-I
110A
110B
110C
1
2
N3 P3
GRY
PNK
ORG
BLU
A5P
PC0511-1(A)
U
V
W CTRL
OFN1
NB
M
3
U
V
W
1
2
3
4
5
1
2
1 2
N1 P1
1
2
1
2
3
1
2
3
4
5
A4/41-I
A4/7-I
A4/5-I
YEL
RED
BLK
WHT
A5PJMP-I
T3
T1
TB1
1
1
1 2
4A
F1A
1 2
4A
F1B
PB1
2 1
7A
F1C
3G
X4
X1
T1
500VA
H4H1 H2
H3
TB1
3
3
31
155B 155A
163A 163B
TB1
5
TB1
4
43
1
T2B
CLASS 2
75VA
2
5
X3
X2
PL21
5
155A
6
T1PWR1-I
T1PWR1-I
150A
155B 155A
152A
T1PWR2-I
155A 155A
T1PWR2-I
1
PL21
4
3
155B
152A
150A
1
2
GND
161A
155A
155B
SPD-I
SPD
3G
TB1
CCH_230V /(114)
CCH_N /(114)
CCH_N /(145)CCH_230V / (144)
120V_H
(202)
(302)
120V_N
(160)
(202)
(302)
T2B_24V
(248)
(354)
T2B_N
(248)
(355)
120V_N / (160)
TypICal eleCTrICal drawIngs - rebel
www.DaikinApplied.com 65 IM 919-3 • MICROTECH III CONTROLLER

Other manuals for Daikin MPS

Related product manuals