EasyManua.ls Logo

Daikin MPS - Page 68

Daikin MPS
82 pages
Print Icon
To Next Page IconTo Next Page
To Next Page IconTo Next Page
To Previous Page IconTo Previous Page
To Previous Page IconTo Previous Page
Loading...
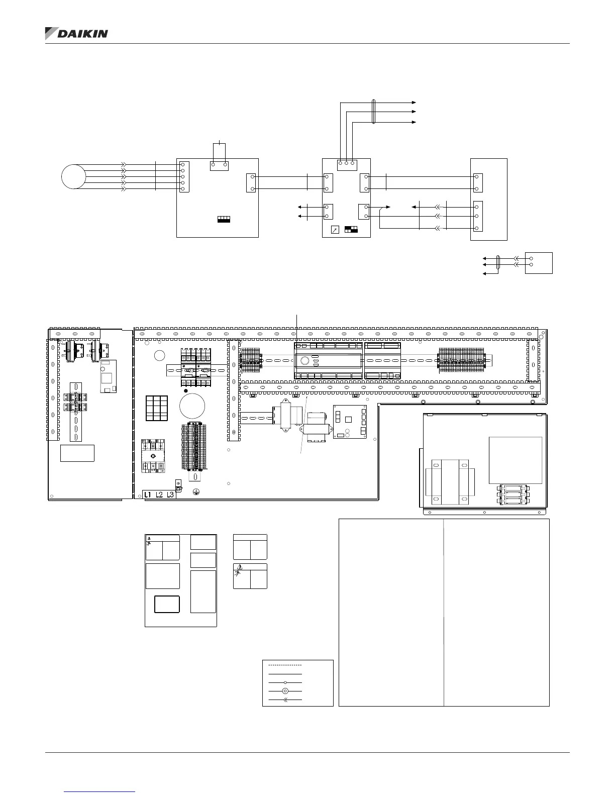
Figure 32 continued: Rebel Electrical Diagram
303
304
305
306
307
308
309
310
311
312
313
314
315
316
317
318
319
320
321
322
323
324
325
326
327
328
329
330
331
332
333
334
335
336
337
338
339
340
341
342
343
344
345
346
347
348
349
350
351
352
353
354
355
356
357
358
359
360
361
362
301
302
363
364
365
MODBUS
X4A
TN2
+ -
ACS3
ACS1
X6A
24VAC
DIP SWITCH
1
2
3
4
2
GND
ORG
RED
X86A
X88A
X89A
YEL
BLK
GRY
4
KON 24
SD
1 2 3
DIP SWITCH
A4P
(120)
IFB
1
2
1
2
1
2
16V
GND
3
2
1
A4/4-I
DO1B
DO1
354A
X6A-1I
CBL345-I
DRN
EVB/88A-I
C1
13 14
R-CCH1
(145)
NCNO
R5-6
C2
DO2
DO2B
IFN_MOTOR
NB
1
2
IFN-CI
DI5
MCB
3
1
WHT
BLK
155B 305A 155A
155A
IFB-I
RED
BLK
351E
352B
WHT
BLK
RED
DRN
WHT
BLK
163A
163B
RED
BLK
WHT
X6A-2I
3
2
1
PL17
3
4
EVB
(116)
1
3
EVI
NB
EVI-I
EVBJMP-I
1
2
3
4
5
1
2
BLK
WHT
BRN
RED
GRN
1
3
2
4
EVI
5
2
1
5
310A
155B
1
PL4
2
PL4
CH
HP1
NB
13 14
R-HP1
(307)
(255)
NCNO
HP1-I HP1-I
9 5
R-HP1
(303)
155A
155B 303A
HEAT1-CI
301G
(217)
TB8
DRN
X5-AO
2
3
PL18
4
PL19
3
HEAT1
MOD GAS
HEATER
NB
-
+
1
PL19
L1
L2
G
HEAT1-CI
BLK
WHT
RED
HEAT1-CI
GRN
WHT
R
W
DO3
DO3
TB8
309
C3
21
AHL
NB
HEAT-2I
YEL
319A
TB8
307
YEL
AHL-I
EXPD
155B
DI6
255
(255)
120V_N
(160)
120V_H
(160)
A1+ /(212)
B1- /(213)
GND1 /(214)
(212)
A1+ /
B1- / (213)
GND1 / (214)
T2B_24V /
(163)
T2B_N /
(163)
256
(257)
WARNING/ ADVERTISSEMENT
DANGER
LABEL TO BE
SHIPPED LOOSE
AND APPLIED TO
INNER DOOR OF
McQUAY'S UNIT.
PLACE SOFTWARE
LABEL IN AREA
SHOWN ON LABEL.
DANGER/WARNING
LABELS TO BE SHIPPED
LOOSE AND PLACED
ON OUTSIDE OF UNIT
DOOR.
FOR HIGH VOLTAGE WIRING
DO NOT RUN HIGH VOLTAGE
WIRES INSIDE WIRE TRACK
Description:
Four Way Valve
Compressor 1 Inverter
Compressor 1 Inverter Electrical Noise Filter
Outdoor Fan 1 Inverter
Outdoor Fan 2 Inverter
Outdoor Fan Electrical Noise Filter
Actuator Motor, Heat Wheel
Actuator Motor, Economizer
Auxiliary High Limit
Crankcase Heater
Valve, Condenser Coil
Communication Module (BACnet, Lonworks, ...)
DIII-NET Communication Gateway
Temperature Sensor, Discharge Air
Defrost Temperature Sensor
Duct Hi-limit, Switch
Discharge Refrigerant Temperature Sensor
Disconnect Switch, Unit Power
Disconnect Switch, Supply Fan / Circuit 2
Disconnect Switch, Powered GFCI Receptacle
Expansion Valve Board
Expansion Valve Board Electrical Noise Filter
Indoor Expansion Valve
Outdoor Expansion Valve
Expansion Control Board
Fuse, Control Circuit Transformer (T1), Primary
Fuse, Control Circuit Transformer (T1), Secondary
Fuse, 460V 3-Phase Transformer (T4), Primary
Fuse, Powered GFCI Transformer (T6), Secondary
Ground Fault Relay
Heater Module
Hi-Limit Switch, Gas Heat
Hi-Pressure Switch, Refrigeration Circuits 1, 3
Interface Board
Interface Board Electrical Noise Filter
Indoor Refrigerant Temperature Sensor
Temperature Sensor, Leaving Coil
Compressor Line Reactor
Compressor 1 Electrical Noise Filter
Contactor, Compressor 3
Contactor, Constant Speed Recovery Wheel
Main Control Board
Mechanical Jumper
Manual Motor Protector, A4P Board
Manual Motor Protector, Supply Fan
Manual Motor Protector, Compressor 3
ID:
MMP51
MMP60
MPB1
OAE
OAER
OAT
OF1F
OF2F
ORT
PB1
PB2
PB1F
PC5
PC7
PTD
PTS
PVM1
R63
RAE
RAT
R-CCH1
REC1
RES3,4
RHB1
R-HP1
RHV1
SD1/SD2
SHS1
SPD
SPS1
SPS2
SRT
SVB
SVR
T1
T12
T1F
T2A,B
T4
T6
T7
TB1
TB2
TB8
VFD60
ID:
4WV
A4P
A4PF
A5P
A5P+
A5PF
ACT12
ACT3
AHL
CCH
CHV1
Comm Mod.
D3
DAT
DFT
DHL
DRT1,3
DS1
DS2
DS6
EVB
EVBF
EVI
EVO
EXPB,D
F1A,B
F1C,D
F4A,B,C
F6C
GFR1
HEAT1
HL
HP1,3
IFB
IFBF
IRT
LCT
LR1
M1F
M3
M60
MCB
MJ
MMP1
MMP10
MMP3
Description:
Manual Motor Protector, Exhaust Fan
Manual Motor Protector, Energy Recovery Wheel
Contactor, Circuit 1 Dual Supply
Enthalpy Sensor, Outside Air
Relay, Outside Air Enthalpy
Temperature Sensor, Outside Air
Outdoor Fan Electrical Noise Filter 1
Outdoor Fan Electrical Noise Filter 2
Outdoor Refrigerant Temperature Sensor
Power Block, Power Distribution
Power Block 2,Circuit 2 Dual Supply
Power Block Electrical Noise Filter
Pressure Control, Dirty Filter Switch
Pressure Control, Proof Airflow Switch
Discharge Refrigerant Pressure Sensor
Suction Refrigerant Pressure Sensor
Phase Voltage Monitor
Relay, Duct High Limit Switch
Enthalpy Sensor, Return Air
Temperature Sensor, Return Air
Crankcase Heater Relay
Receptacle, GFCI
Resistor
Reheat Board, Hot Gas
High Pressure Compressor 1 Relay
Valve, Reheat Coil
Smoke Detector, Supply Air/Return Air
Space Humidity Sensor
Surge Protective Device
Static Pressure Sensor, Duct
Static Pressure Sensor, Building
Suction Refrigerant Temperature Sensor
Refrigerant Bypass Solenoid Valve
Refrigerant Receiver Solenoid Valve
Transformer, Main Control
575/460V Primary Power Transformer
Main Transformer Electrical Noise Filter
Transformer, Control Input (115/24VAC)
Transformer, 230V Single Phase (460/397VAC)
Transformer, Powered GFCI Receptacle (Line/115VAC)
Transformer, Reheat Control Board (115/24VAC)
Terminal Block, Internal Power Distribution
Terminal Block, Field -24V
Terminal Block, Internal Signal Distribution
Variable Frequency Drive, Energy Recovery Wheel
Field Wiring
Factory Wiring
Field Terminal
Factory Terminal
Plug Connection
F
F
F
F
A
A
A
A
B
B
B
B
C
C
C
C
D
D
D
D
G
G
G
G
H
H
H
H
MCB aligned with wireway mounting hole
DS1
EXPD
GLG1
IFB
24V
ACS1 ACS2 ACS3
Modbus
MCB
MMP1MMP10
GND10
PB1
PC5
PC7
R-CCH1
R-HP1
F1A F1B F1C
T1
H X
T2A
T2B
TB1
TB2
TB8
T4
F4A
F4C
F4B
L1
L2
L3
T1
T2
T3
N
GFR1
IM 919-3 • MICROTECH III CONTROLLER 68 www.DaikinApplied.com
TypICal eleCTrICal drawIngs - rebel

Other manuals for Daikin MPS

Related product manuals