EasyManua.ls Logo

Daitsu FMCD-04 - Wiring Diagrams; 2-Pipe System

Daitsu FMCD-04
60 pages
Print Icon
To Next Page IconTo Next Page
To Next Page IconTo Next Page
To Previous Page IconTo Previous Page
To Previous Page IconTo Previous Page
Loading...
Page 25 of 58
SK2019 FMCD-V-ECM-001
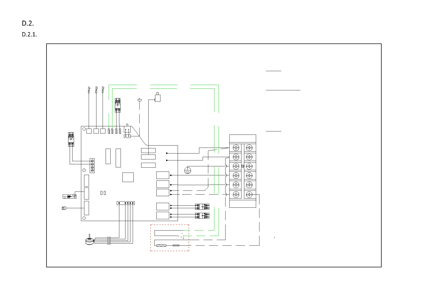
Wiring Diagrams
2-pipe system Total Type Control
Reset switch for SWC-20, 24, 30
Louver Stepping motor
CN1
Dip switch A
N
L
KEY
N
L
V1 V2
VALVE1
HEAT
VALVE2
AUX1
AUX2
FUSE
Dip switch B
Wired Wall
pad plug
A B A B
Yellow/Green
Reset switch SWC06~18
CN4
Plug
Legend:
DIPA-S1
SW1-5: set the unit address
SW6: set unit type: master or slave
Mode Configuration
SW7=0;SW8=0; unit operates in cooling/heating;
SW7=0;SW8=1; unit operates in cooling/heating
with booster EH;
SW7=1;SW8=0 ; unit operates in cooling
SW7=1;SW8=1; unit operates in cooling
with primary EH
DIPB-S2
SW1:Occupancy connect setting
SW2: Unit configuration setting: 0=2pipe system;
1=4-pipe system;
SW3: on/off valve configuration:0= no valve
1=with valve
SW4:preheat setting: 0=36C; 1=28C
SW5,SW6,S3(jump)----RPM selection.
L\N----Power supply
VALVE1:230V on/off valve output;
VALVE2:230V on/off valve output;
HEAT----Electrical heater
AI1:Return air temperature sensor(Tr) ;
AI2:Indoor coil temperature sensor1 (Ti1) ;
AI3:Indoor coil temoeraturesensor 2 (Ti2) ;
AUX1:Voltage free contact; ON:unit in heating mode.
AUX2:Voltage free contact; ON:unit in cooling mode.
ON/OFF:Occupancy contact
CN1 2---Stepping motor
CN3---Serial BUS contacts.
CN4---Ec motor
DIS---Led receiver display
TTL---wired wall pad
CPU
S4 S3
AI3 AI2 AI1
CN2
prog
EH
DIS
TTL1
S1
S2
CN3
ON/OFF
TERMINAL
{
chilled /hot water
4-pipe coil circut sensor
2 pipe sensor (Ti1)
Renturn sensor (Tr)
(Ti2):hot water
EC-S Unit wiring scheme
EH
B A
RS485 plug
A1 A1 A2 A2
Auxiliary heating contact
Auxiliary cooling contact
Electrical heater
FUSE
EC moter
DISPLAY
PROs
PRO contact
110C
IPA19-DL-EC-S

Table of Contents

Related product manuals