EasyManua.ls Logo

Danfoss APP series - Page 63

Danfoss APP series
118 pages
Print Icon
To Next Page IconTo Next Page
To Next Page IconTo Next Page
To Previous Page IconTo Previous Page
To Previous Page IconTo Previous Page
Loading...
180R9346 | AQ240486503020en-001702 | 63© Danfoss | 2023.03
Operation guide Installation, Operation and Maintenance APP 53-92 pumps
BoWex-ELASTIC
®
Operating/Assembly instructions
Type HEW, HEW Compact and HEW-ZS
KTR-N
Sheet:
Edition:
40114 EN
3
of 22
7
Please observe protection
note ISO 16016.
Drawn:
2017-04-24 Shg/Hk
Replacing:
KTR-N dated 2013-06-10
Verified:
2017-04-24 Shg
Replaced by:
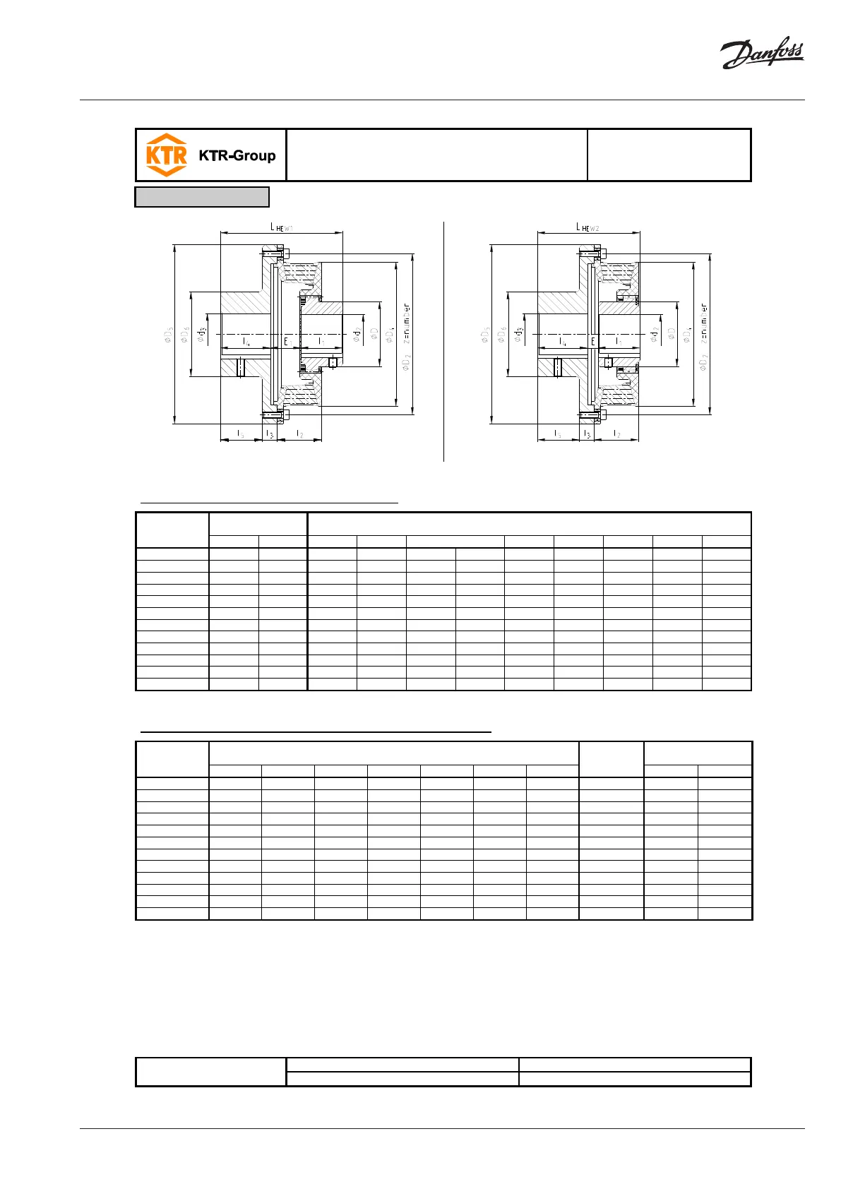
Illustration 1: BoWex-ELASTIC
®
type HEW1
Illustration 2: BoWex-ELASTIC
®
type HEW2
Table 1: Dimensions type HEW1 and HEW2
Size
Max. finish bore
[mm]
Dimensions [mm]
d
2
d
3
D
D
2
z x M
D
4
D
5
D
6
l
1
l
2
42
48
50
68
162
6
M6
146
180
85
50
45
48
48
55
68
180
8
M6
164
200
92
50
45
65
65
75
96
224
8
M8
205
245
125
70
55
80
80
80
124
295.27
8
M10
266
318
130
90
70
G 80
85
95
124
333.4
8
M10
302
358
145
90
80
100
100
110
152
438.15
8
M12
350
478
158
110
80
125
125
125
192
438.15
16
M12
416
478
175
140
99
G 125
125
125
192
489
8
M12
440
530
175
140
95
150
160
160
225
542.9
6
M16
470
585
225
150
100
G 150
160
160
225
542.9
6
M16
504
585
225
150
108
200
180
200
250
641.35
12
M16
568
683
280
175
149
G 200
180
200
200
250
12
M16
600
683
280
175
149
Table 1: Continuation of Dimensions type HEW1 and HEW2
Size
Dimensions [mm]
Weight with
max. bore
[kg]
Mass moment of
inertia [kgm
2
]
l
3
l
4
l
5
E
E
1
L
HEW
1
L
HEW
2
J
A
J
L
42
15
50
42
4
32
132
104
4.3
0.0121
0.0015
48
17
55
45
4
32
137
109
5.5
0.0204
0.0019
65
28
75
63
5
42
187
150
13.2
0.0752
0.0071
80
17
80
70
5
45
215
160
19.7
0.1449
0.0285
G 80
22
90
78
5
55
235
185
25.9
0.2748
0.0422
100
14
111.5
113
26
57
278
207
48.5
0.8356
0.1050
125
14
170
158
-
45
327
-
67.2
0.9498
0.2617
G 125
14
170
158
-
45
327
-
76.6
1.4492
0.3034
150
18
150
145
-
70
380
-
110
2.7206
0.5303
G 150
18
150
145
-
70
380
113.4
2.7809
0.5861
200
26
220
214
-
85
480
195
6.6418
1.1406
G 200
26
220
214
-
85
480
200
6.6099
1.3419
1 Technical data

Table of Contents

Other manuals for Danfoss APP series

Related product manuals