EasyManua.ls Logo

Delta AU Series - Electrical Connection Procedures

Delta AU Series
58 pages
To Next Page IconTo Next Page
To Next Page IconTo Next Page
To Previous Page IconTo Previous Page
To Previous Page IconTo Previous Page
Loading...
19
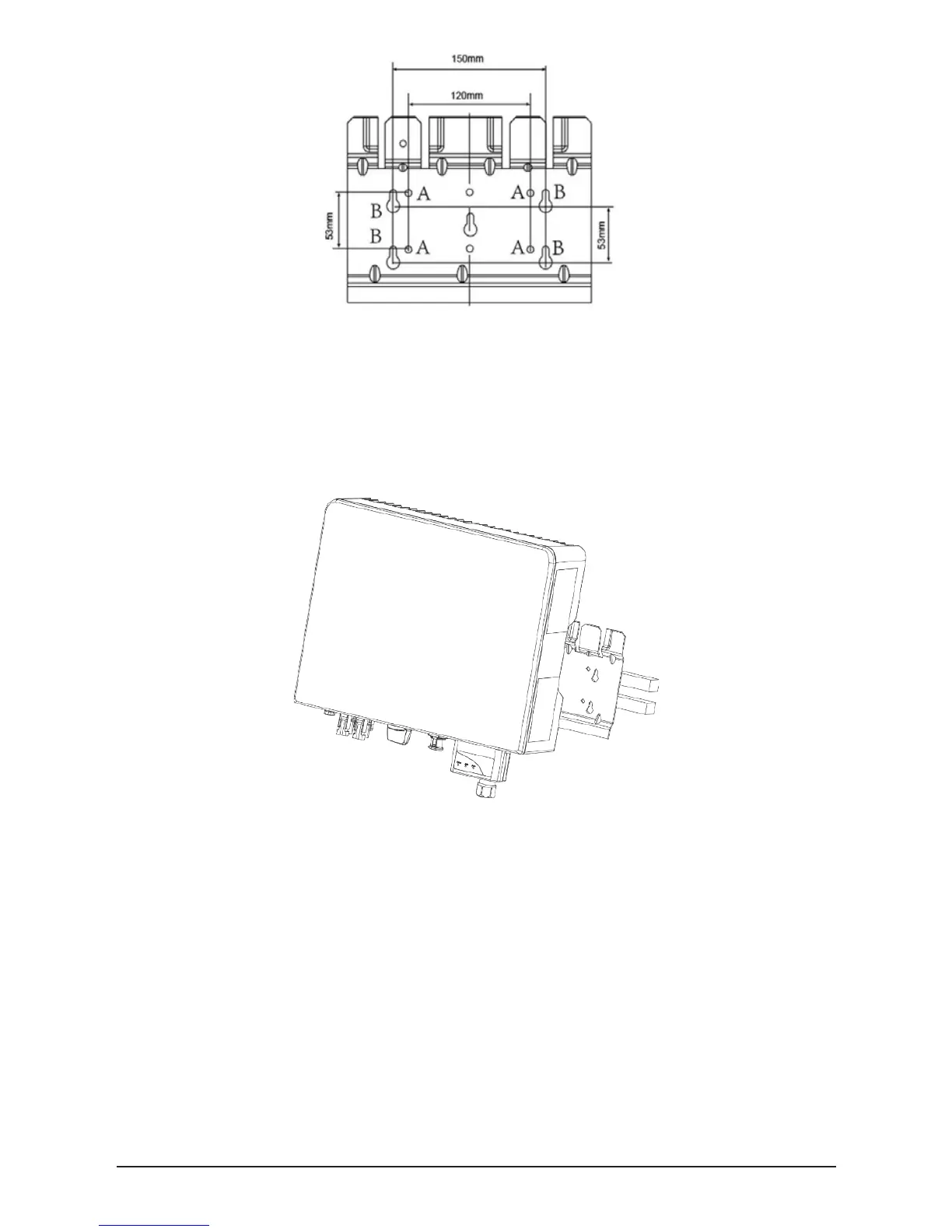
Figure. 9 Dimension drawing of mounting plate
1. Mount the mounting plate to the wall with at least 4 screws and anchors (Ø 6mm). With 4
screws use 4 holes A or 4 holes B (see Figure 9). You can use the mounting plate as
a template for marking the positions of the boreholes.
2. Tighten the screws firmly to the wall.
Figure 10. Mounting the plate and the inverter to the wall
1. Figure 13: Installing the plate and inverter on a wood stud wall Using the mounting plate as a
template, mark four screw holes onto the wall. For 16 inches (40.6 cm) on center stud
mounting, use the four holes that are indicated for this purpose in the figure. Make sure the
holes are in the center of each stud before marking the drill location.
2. After marking the screw hole locations, drill the pilot holes for the appropriate screw type
that will hold the weight of the inverter in the selected material. 1/4“lag bolts are recom-
mended for mounting on wood framed walls.
3. Align the mounting plate over the pilot holes and install the mounting hardware to mounting
surface. Please tighten to the recommended torque necessary to hold the mounting plate
firmly to the wall surface type.
4. As the solar inverters are heavy, they should be lifted carefully.
5. With at least two persons on either side of the inverter, lift it up and place it carefully onto
the mounting plate. Install two screws as shown in the figure 9 to secure the

Related product manuals