EasyManua.ls Logo

Delta VFD007FP4EA-41 - Page 62

Delta VFD007FP4EA-41
404 pages
Print Icon
To Next Page IconTo Next Page
To Next Page IconTo Next Page
To Previous Page IconTo Previous Page
To Previous Page IconTo Previous Page
Loading...
Chapter 5 Main Circuit Terminals|CFP2000 Series
5-11
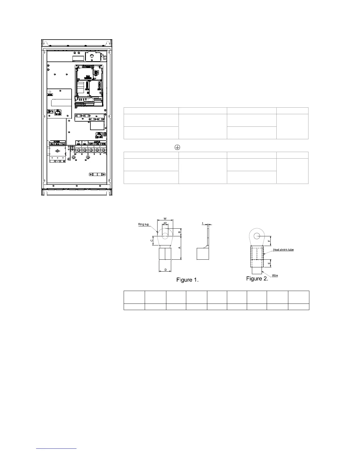
Frame D0
Main circuit terminals:
z If you install at Ta 35°C above environment, please select copper wire
which have voltage rating 600V and temperature resistant 90°C or above.
z If you install at Ta 35°C environment, please select copper wire which
have voltage rating 600V and temperature resistant 75°C or 90°C.
z For UL installation compliant, you have to use copper wires when
installation, the wire gauge is based on temperature resistant 75°C which
is according to the requirements and recommendations from UL. Do not
reduce the wire gauge when using higher temperature wire.
R/L1, S/L2, T/L3, (Stranded wire only)
Models Max. Wire Gauge Min. Wire Gauge Torque
VFD450FP4EA-52S
1/0 AWG [53.5mm
2
]
1 AWG
[42.4mm
2
]
63.3kg-cm
[55lb-in.]
[6.20Nm]
VFD550FP4EA-52S
1/0 AWG
[53.5mm
2
]
U/T1, V/T2, W/T3, , -/DC-, +1/DC+
Models Max. Wire Gauge Min. Wire Gauge Torque
VFD450FP4EA-52S
1/0 AWG [53.5mm
2
]
1 AWG
[42.4mm
2
]
M8
81.6kg-cm
[70.8 lb-in.]
[8.00Nm]
VFD550FP4EA-52S
1/0 AWG
[53.5mm
2
]
; It needs following additional terminal when wiring. The additional
terminal dimension should comply with the following figure 1.
; After crimping the wire to the ring lug (must UL approved), UL and CSA
approved R/C(YDPU2) heat shrink tubing rated min 600Vac insulation
shall be install over the live part.
Unit: mm
A
(MAX)
B
(MAX)
C
(min)
D
(MAX)
d2
(min)
E
(min)
F
(min)
W
(MAX)
t
(MAX)
39 10.5 10 20 8.3 13 11.5 22 2.5

Table of Contents

Related product manuals