EasyManua.ls Logo

DINGLI BT22ERT - Page 67

DINGLI BT22ERT
68 pages
Print Icon
To Next Page IconTo Next Page
To Next Page IconTo Next Page
To Previous Page IconTo Previous Page
To Previous Page IconTo Previous Page
Loading...
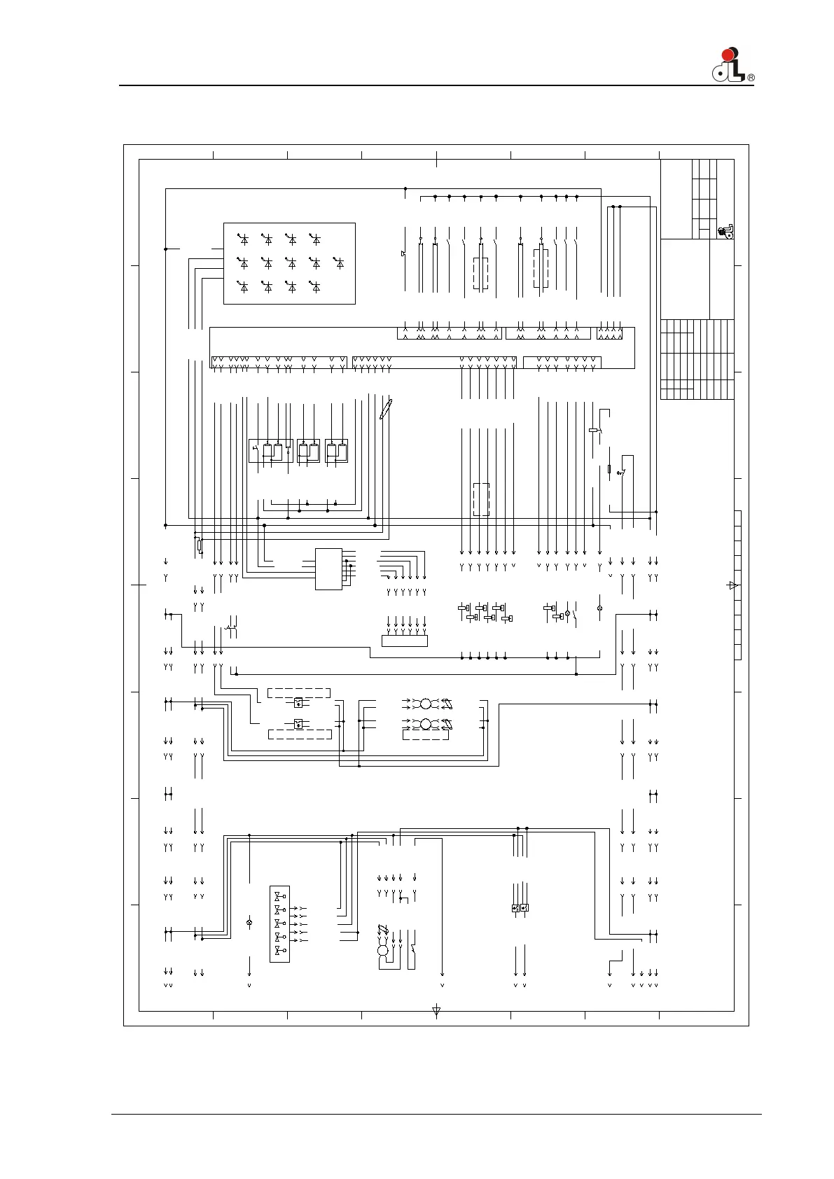
Schematic
63
Apply To BT30ERT/BT26SERT
This Electrical Diagram Is Suitable For Models
BT22ERT,BT24ERT,BT26ERT,BT26SERT,BT28ERT,BT30ERT;
LED Panel
Overload
alarm LED
Overload
warning LED
System
Alarm LED
Chassis Tilt
Alarm LED
Front Axle
Aligned LED
Turret In Front
Position LED
Climbing LED
High Speed
LED
U Turn
Steer LED
Crab
Steer LED
Differential
Lock LED
Rear Axle
Aligned LED
Power LED
Electrical
Schematic
Footswitch
PLATFORM
MC2M
Main Boom Length &
Angle Sensor
Jib Angle Sensor
Platform Tilt Sensor
Jib Function Valve
Jib Level Valve
Turret Swing Valve
Main Lift Valve
Main Tele Valve
Apply To BT30ERT/
BT26SERT
Deadman Switch
Walk signal A
Walk signal B
Alarm Buzzer
Low Speed Switch
Crab Steer Switch
Emergency Pump Switch
Horn Switch
Jib Retract Switch
Jib Extend Switch
Head Light Relay
Head Light Switch
Anti-hand-clamping Signal 1
Platform Level Up Valve
Jib Extend Valve
Jib Lift Up Valve
Platform Rotate Left Valve
Steer Left Switch
Turret Swing Signal
Jib Lift Signal
Main Boom Telescope Signal
Main Boom Lift Signal
Footswitch Signal 1
Footswitch Signal 2
Apply To BT30ERT/
BT26SERT
Jib:Proximity Switch Jib-In 1
Platform Level Up Switch
Platform Rotate Left Switch
Platform Auto Levelling Switch
Platform E-Stop
Load Sensor
differential Lock Switch
High Speed Switch
U Turn Steer Switch
Platform Rotate Right Valve
Platform Level Down Valve
Jib Retract Valve
Jib Lift Down Valve
Platform Level Down Switch
Steer Right Switch
Platform Rotate Right Switch
Load Sensor
Amplifier
Apply To BT30ERT/
BT26SERT
Apply To BT30ERT/
BT26SERT
Constraint Switch
Chain Scission Switch
Main Boom Lift Down Proximity Switch 2
Main Boom Lift Down Proximity Switch 1
PVG Power
Platform Power 1
Platform Power 2
System Power Control Out
System Power Control In
Flashing Beacon
CANL
CANH
Negative
Negative
Chain Scission Switch
Head Light
Anti-hand-clamping Switch
Anti-hand-clamping Warning Light
S
19
38
T38 GN/WH(18)
SQ14
HL4
T239 GN/YE(18)
T238 GN/BU(18)
24-010 RD(18)
39
17
S2+ YE(23)
S2- PK(23)
P+ BN(23)
P- GY(23)
S1+ WH(23)
S1- GN(23)
3-P+ WH(20)
3-P- BK(20)
3-S1+ YE(22)
3-S1- GN(22)
1
2
5
6
POT3A
POT3B
JB3
33
34
29
30
40
T
16
HL1
U216 WH/RD(20)
U217 BN/BU(18)
U218 BN/WH(18)
U209 OR(20)
U210 PK(20)
U225 BN/BU(20)
U201 GY(20)
U202 BN/YE(20)
U205 BN/RD(20)
U206 BN/BK(20)
T233 GN/RD(20)
T234 WH(20)
T229 GN/VT(20)
T230 GN/BU(20)
T240 VT(20)
T216 RD/BU(20)
S17
S18
S16
S20
S24
S29
S22
SB4
S24
GND
+VA
SIG1
SIG2
+8V
AGND
H1
L1
+8V
AGND
H2
L2
4
1
2
3
P
17
18
25
14
EVP6
SQ13
SB2
15
19
20
EVP7
EVP11
EVP10
EVP4
EVP5
5-020 WH (14)
23-010 RD(14)
030 RD(12)
30-GND BK(12)
37-GND BK(12)
1-030 RD 12)
2-030 RD 12)
3-030 RD 12)
S219 BU/BN(18)
S220 BN/RD(18)
T214 GN/VT(18)
T207 BN/BU(18)
S215 GN/VT(18)
S214 WH/VT(18)
S215 VT/GN(18)
S214 VT/YE(18)
S219 GN/BU(18)
S220 GN/VT(18)
55-GND BK (18)
KA6
T217 VT/YE(20)
FU13
10A
HL3
31
32
POT1A
POT1B
U231 RD/WH(20)
U232 RD/GN(20)
JB1
33
34
POT2A
POT2B
U233 RD/YE(20)
U234 RD/BU(20)
JB2
5-020A BU (14)
U221 WH/VT(20)
S25
35-GND BK(20)
T207 BU/RD(18)
T214 RD/WH(18)
T219 BN/BK(18)
SQ4
SQ5
31-010 RD(20)
45-010 RD(20)
40-010 RD(20)
49-010 RD 20)
34-GND BK (20)
040 RD/WH(14)
T217 OR(14)
4-030 RD(14)
36-010 RD(20)
35-010 RD(20)
2-S231 RD/BU(20)
2-S232 BK/VT(20)
48-010 RD(20)
47-010 RD(20)
39-010 RD(20)
T40 BU/WH(18)
T39 BU/RD(18)
55-010 RD(18)
57-GND BK(18)
S4 BN/BU(18)
32-GND BK(18)
33-GND BK(18)
25-010 RD(18)
26-010 RD(18)
U217 GN/WH(18)
U218 BN/BU(16)
24-GND BK(14)
9
10
16
21
U
U
U
S
32
31
S231 RD/BU(20)
S232 BK/VT(20)
25
23
S225 YE(20)
S223 GN(20)
120Ω
CAN33H YE(20)
CAN33LGN(20)
1
21
S201 RD(16)
S221 BK(16)
T
20
7
14
U
S
T
U
T
11
12
U211 YE(20)
U212 GN(20)
U8 WH (20)
S26
50-010 RD (20)
8
17
18
EVP9
EVP8
EVP10
S217 BN/GY(18)
S217 BU/RD(18)
S218 GN/RD(18)
S218 GN/RD(18)
35
36
X224-8
CAN46H YE(20)
CAN46LGN(20)
T17A BN(14)
X224-5
X224-6
4-020 GN/VT (14)
4-020A BU (14)
CAN7H YE(20)
CAN7LGN(20)
CAN3H YE(20)
CAN3LGN(20)
X228-8
X228-7
13-GND BK(14)
5-GND BK(14)
6-GND BK(14)
X228-3
X228-4
13-010 RD(14)
14-010 RD(14)
5-010 RD(14)
6-010 RD(14)
X228-2
X228-1
X228-5
X228-6
3-020 WH (14)
3-020A BU (14)
14-GND BK(14)
SQ13
SQ14
8-010 RD(20)
8-GND RD(20)
9-010 RD(20)
9-GND RD(20)
U222 BN(20)
U223 BU(20)
X203-4
31-GND BK(16)
X203-6
X203-7
X203-8
X203-9
X203-10
X203-11
X203-12
X203-14
X203-15
X203-16
X203-17
X203-18
X203-19
X203-20
X203-24
X203-25
3-S2+ YE(22)
3-S2- GN(22)
36-GND BK(20)
29-010 RD(20)
13
S213 WH(18)
X204-31
T225 WH(20)
25
X288-8
X288-7
X288-2
X288-1
52-010 RD(18)
52-GND BK(18)
CAN54H YE(18)
CAN54L GN(18)
CCR2
CAN56L GN(20)
CAN56H YE(20)
5
4
52-GND BK(20)
71-010 RD(20)
X288-10
T37 BN/YE(18)T37 BN/YE(18)
70-010 RD(18)
3
2
HA4
N1
LS1
3
3
B
X389-3
X389-4
63-010 RD(14)
64-010 RD(14)
3-010 RD(14)
4-010 RD(14)
2-020 WH(14)
2-020A BU(14)
X389-5
X389-6
X389-1
X389-2
1-GND BK(14)
2-GND BK(14)
X289-3
X289-4
CAN1H YE(20)
X289-8
CAN1L GN(20)
X289-7
1-020 WH(14)
X289-5
1-020A BU(14)
X289-6
1-010 RD(14)
X289-1
2-010 RD(14)
X289-2
T235 WH/YE(20)
T236 YE/RD(20)
S19
44-010 RD(20)
U203 BN(20)
U204 YE/RD(20)
S28
46-010 RD(20)
3
4
22
23
U222 GY/BN(18)
U223 BU/WH(18)
1-S231 RD/BU(20)
1-S232 BK/VT(20)
3-S231 RD/BU(20)
3-S232 BK/VT(20)
X204-1
X204-2
X204-6
X204-5
X204-8
X204-7
X204-4
X204-3
X204-10
X204-12
X204-13
X203-1
X203-5
X204-30
34-GND BK(18)
31-GND BK(18)
30-GND BK(18)
29-GND BK(18)
28-GND BK(18)
27-GND BK(18)
T219 GN/BK(18)
25-GND BK(18)
U222 GY/BN(18)
U223 GY/WH(18)
X224-10
X224-11
2
6
4
5
1
3
21-010 RD(14)
20-010 RD(12)
22-010 RD(14)
23-010 RD(14)
X224-2
X224-1
20-GND BK(12)
22-GND BK(14)
23-GND BK(14)X224-4
X224-3
X224-7
CBS2
7-010 RD(22)
7-GND BK(22)
CAN4L GN(22)
CAN4H WH(22)
CBS1
3
2
4
5
12-010 RD(22)
12-GND BK(22)
3
2
CAN6L GN(22)
CAN6H WH(22)
4
5
CAN2H YE(20)
CAN2LGN(20)
63-GND BK(14)
3-GND BK(14)
4-GND BK(14)
64-GND BK(14)
X389-8
X389-7
53-GND BK(14)
50-GND BK(14)
X280-Q
54-GND BK(14)
51-GND BK(14)
X280-R
X280-N
X280-L
X280-M
X280-O
X280-P
X281-B
X281-A
X280-A
X280-B
X280-C
X280-K
53-010 RD(14)
54-010 RD(14)
50-010 RD(14)
50-010 RD(14)
6-020 RD/BK (14)
6-020A WH/VT(14)
CAN53H YE(20)
CAN53LGN(20)
CAN51H YE(20)
CAN51LGN(20)
PVG
59-GND BK(20)
3
CAN52H YE(20)
4
CAN52L GN(20)
5
1
2-510 RD/WH(20)
2
1-510 RD/WH(20)
510 RD/WH(14)
56-010 RD(18)
56-GND BK(18)
F
G
H
D
C
B
E
A
D
C
B
A
H
G
F
E
21
3 4 6 7 8
5
1 2
3 6 7 8
标记
处数更改文件号
日期
CAN34H YE(20)
CAN34LGN(20)
42-010 RD(20)
40-GND RD(20)
27
28
T227 GN/RD(20)
T228 GN/BK(20)
S15
34-010 RD(20)
00007271
Beacon
Anti-hand-clamping Lamp

Related product manuals