EasyManua.ls Logo

DKS 1812 - 1.10 Wiring - Multiple Units - Intercom Mode

Default Icon
63 pages
Print Icon
To Next Page IconTo Next Page
To Next Page IconTo Next Page
To Previous Page IconTo Previous Page
To Previous Page IconTo Previous Page
Loading...
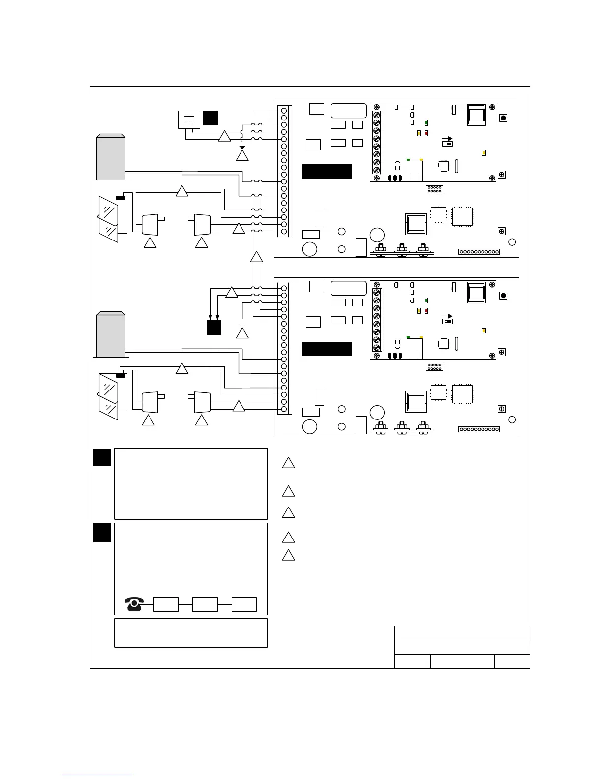
1.10 Wiring for Multiple Units – Intercom Mode
DOORKING, INC., INGLEWOOD, CA 90301
Date: Dwg. No. Rev.
Title:
2/09
A
M1812AP-004
1812 Access Plus – multiple systems.
Basic wire connections intercom mode.
3 2
A
A
Connect the PHONE OUT terminals directly to home
telephone or an un-used C.O. port on a PBX or KSU
system.
Connect the PHONE IN terminals to the next 1812 PHONE
OUT terminals.
Be sure that the 1812 is programmed in the telephone
mode, unless it is the last 1812 in the system. Refer to B
below.
1
5
5
Mag Lock
Power
Mag Lock
Power
16.5 VAC
20 VA
16.5 VAC
20 VA
B
1
1
4
4
3 2
4
4
B
Up to five (5) 1812 units may be wired in series using this
method: PHONE OUT to PHONE IN; PHONE OUT to
PHONE IN, etc.
Each 1812 must have a unique ATTENTION NUMBER and
each must have a unique MASTER CODE.
The 1812 that is the furthest away from the phone or PBX /
KSU system must be programmed for INTERCOM MODE.
All other 1812 units in series are then programmed for
TELEPHONE MODE.
Telephone
Mode
Telephone
Mode
Intercom
Mode
2
Magnetic locks or electric strikes must be powered from a separate UL Listed power
transformer. Do not power strikes or magnetic locks from the 1812 power transformer.
3
1
4
5
Use minimum 18 AWG wire for runs up to 100 feet; 16 AWG wire for runs up to 200 feet. It
is recommended to keep power wire runs as short as possible. Check the power wire chart
for wire size / distance.
Be sure to properly ground all devices. Minimum 12 AWG wire.
Use supplied 16.5 VAC, 20 VA power transformer or UL Listed equivalent. DO NOT
Power this device with a 24 Volt transformer or source voltage.
This device is powered by a 16.5 VAC
transformer. DO NOT power this device with a
24 VAC transformer or power source.
Phone
Jack
Use only twisted pair telephone wire that is rated for direct underground burial. DO NOT
use wire that is intended for indoor applications. Recommend Cat5e Gel Filled
(flooded) UV Resistant Direct Burial Cable. DO NOT run telephone wires and high
voltage wires in the same conduit. Check the phone wire chart for wire size / distance.
Vehicular Gate
Operator
Pedestrian
Gate / Door
2
nd
1812
1st 1812
Vehicular Gate
Operator
Pedestrian
Gate / Door
1
2
3
4
5
6
7
8
9
10
11
12
13
14
15
16
17
18
Mic
Vol
Master
Code
1234567891011
Speaker
Vol
Keypad
ON
SW1 MODEM / TCP ENB
1
2
3
4
5
6
7
8
BAD DNS
RS-485 RX
LAN DOWN
Phone Line
In Use
LAN
Connection
Data
Transmit
1
2
3
4
5
6
7
8
9
10
11
12
13
14
15
16
17
18
Mic
Vol
Master
Code
1234567891011
Speaker
Vol
Keypad
ON
SW1 MODEM / TCP ENB
1
2
3
4
5
6
7
8
BAD DNS
RS-485 RX
LAN DOWN
Phone Line
In Use
LAN
Connection
Data
Transmit
1812-162-B-6-09 Page 19

Table of Contents

Related product manuals