EasyManua.ls Logo

DSE DSE7310 - 4.3.2 7220 AMF CONTROLLER

Default Icon
160 pages
Print Icon
To Next Page IconTo Next Page
To Next Page IconTo Next Page
To Previous Page IconTo Previous Page
To Previous Page IconTo Previous Page
Loading...
DSE7200 / 7300 Series Operators Manual
42
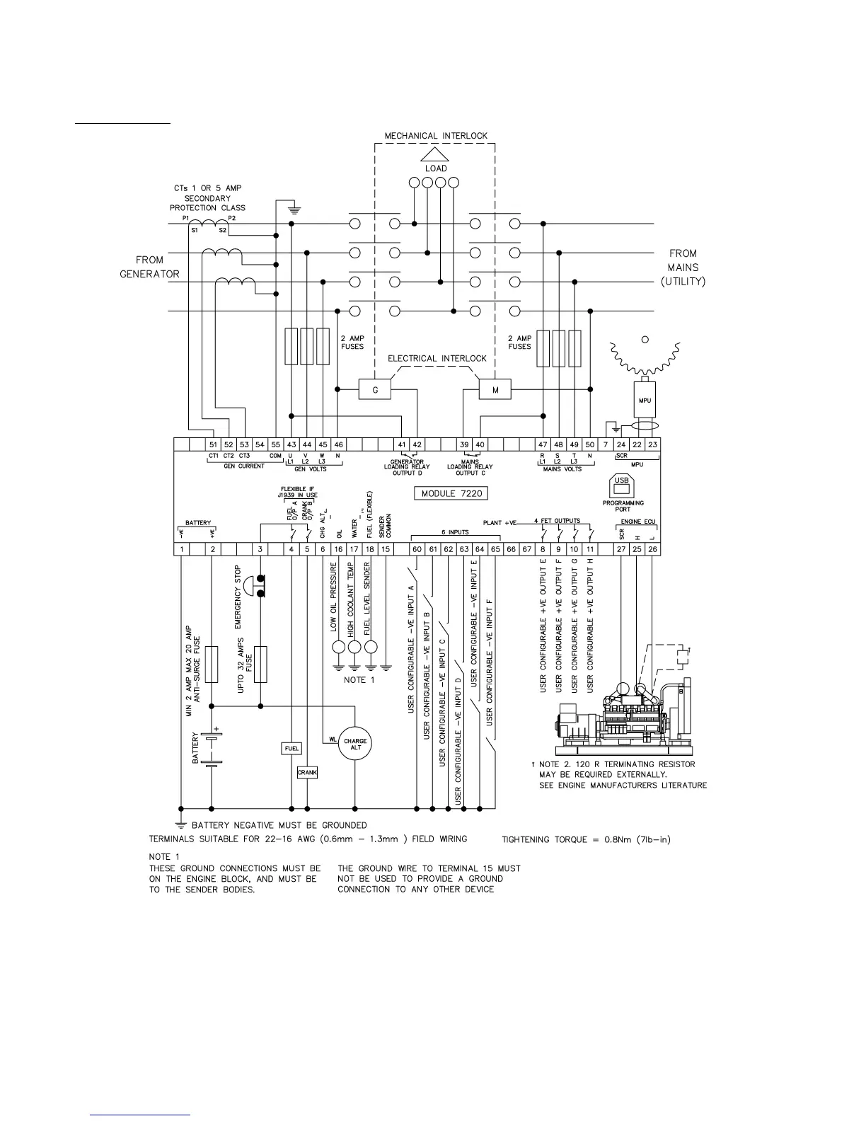
4.3.2 7220 AMF CONTROLLER
3 phase, 4 wire

Table of Contents

Related product manuals