EasyManua.ls Logo

Eaton Cutler-Hammer Easy-Start ES Series - Control Input Diagrams

Eaton Cutler-Hammer Easy-Start ES Series
128 pages
To Next Page IconTo Next Page
To Next Page IconTo Next Page
To Previous Page IconTo Previous Page
To Previous Page IconTo Previous Page
Loading...
Easy-Start ES Instruction Manual
Drawings
INSTALLATION
2-25
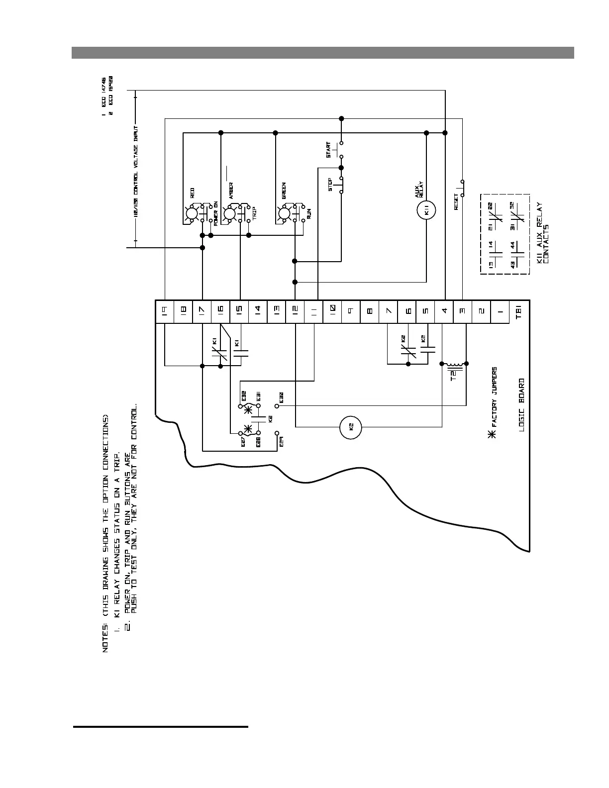
Easy ES-006
Momentary Contact Start/Stop Pushbuttons
Figure 2-6
StockCheck.com

Table of Contents

Related product manuals