EasyManua.ls Logo

Eaton XVS400 - Devices

Eaton XVS400
64 pages
Print Icon
To Next Page IconTo Next Page
To Next Page IconTo Next Page
To Previous Page IconTo Previous Page
To Previous Page IconTo Previous Page
Loading...
9 Technical data
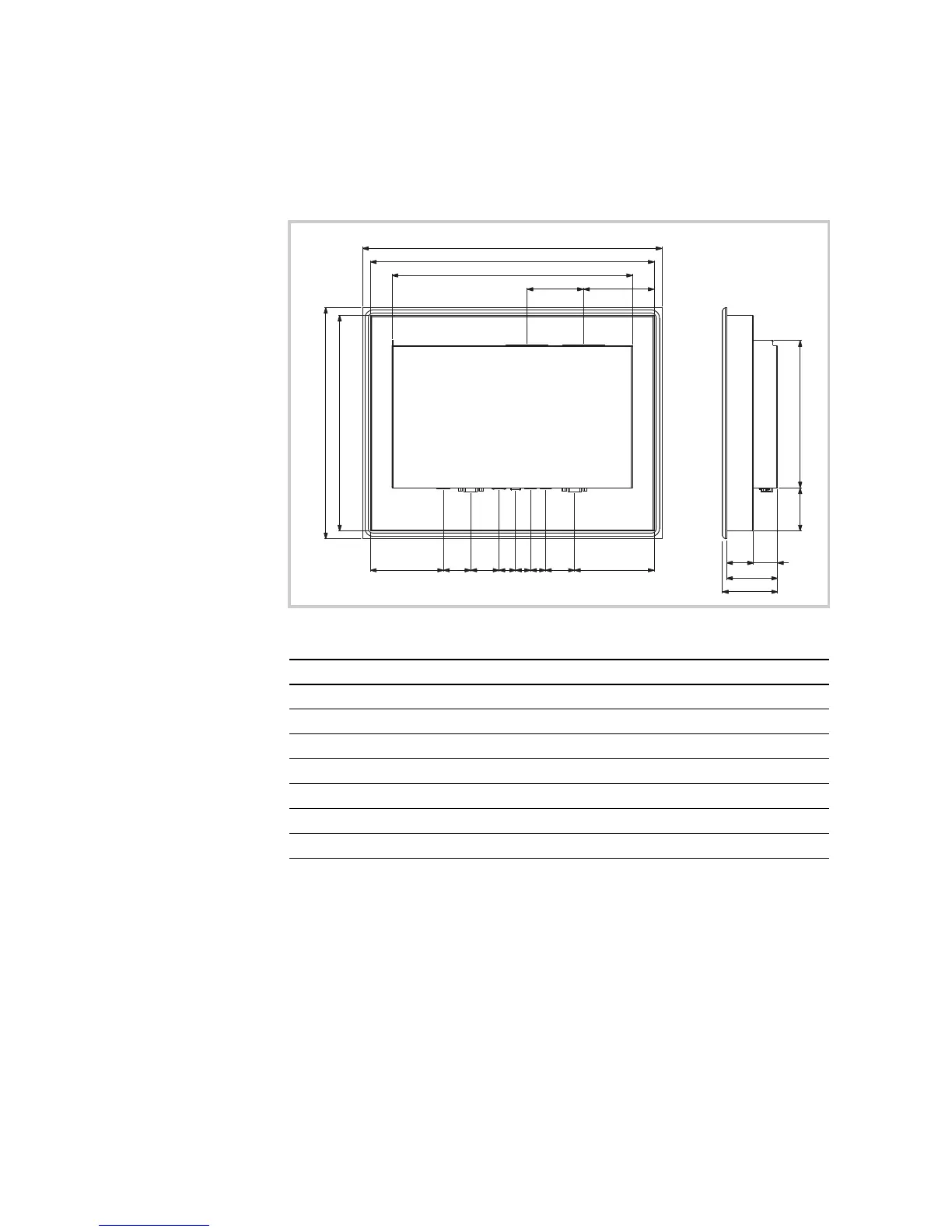
9.1 Dimensions and weights
56 MICRO PANEL XVS400 10.4"/12.1"/15" 10/2011 MN04802012Z-EN www.eaton.com
9.1.2 12.1" devices
Tab. 21 Dimensions and weights of the 12.1" devices
Fig. 31 Mechanical dimensions of the 12.1" devices in mm
Property XVS400 12.1"; MS2 12.1"
Height 279 mm
Width 361 mm
Depth 67 mm
Thickness of front plate 5 mm
Mounting depth 62 mm
Mounting cutout 344 × 262 mm (±1 mm)
Weight Approx. 4.1 kg
(29)
178
52
33
62
67
9635181820343388
8568
290
342
361
260
279

Table of Contents