EasyManua.ls Logo

EBARA GS - Piping Requirements

EBARA GS
38 pages
Print Icon
To Next Page IconTo Next Page
To Next Page IconTo Next Page
To Previous Page IconTo Previous Page
To Previous Page IconTo Previous Page
Loading...
- 9 -
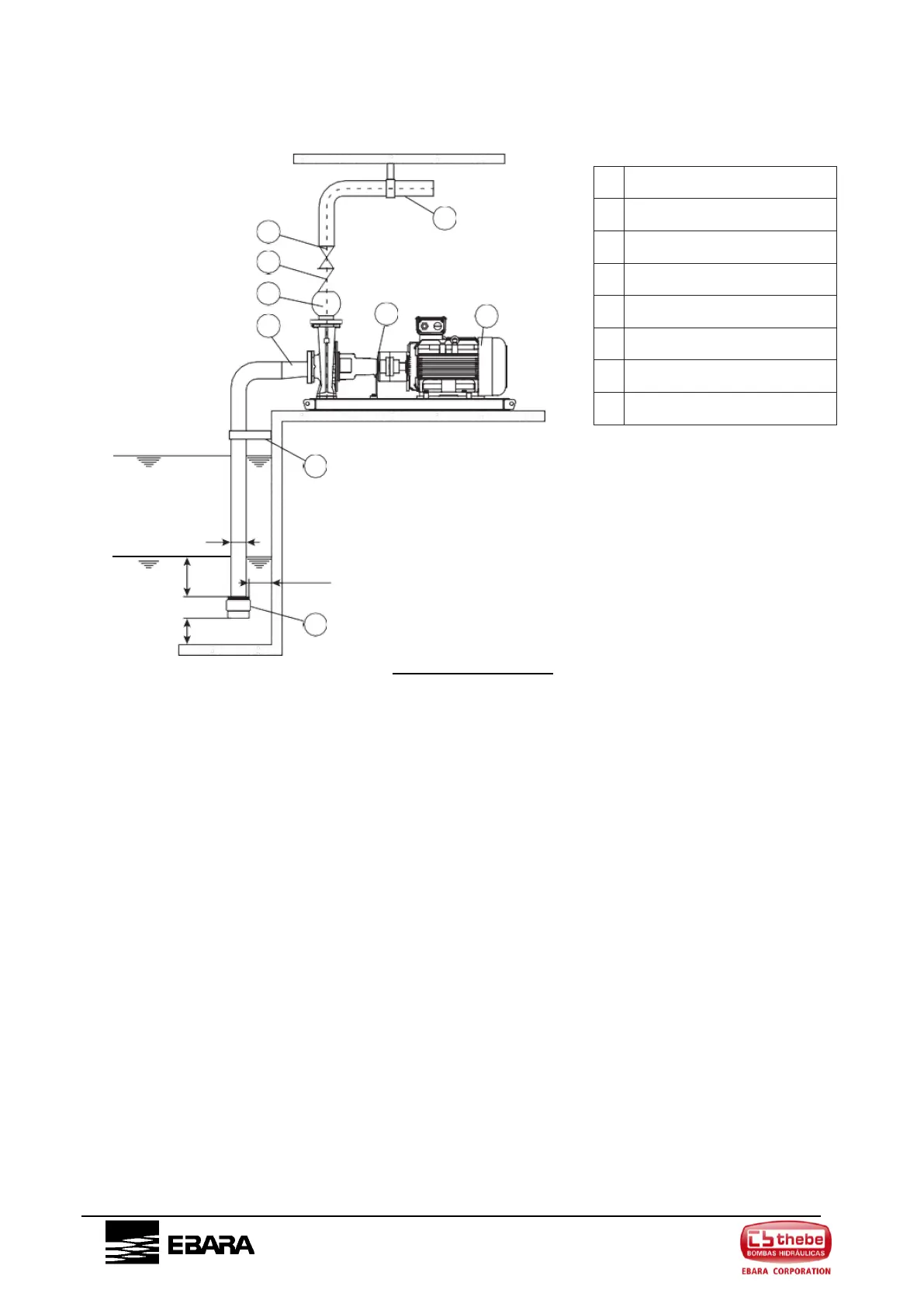
2. Pipes
The installation must be done according to the arrangement shown in the Figure:
Fig.2 Installation view
1. Make sure that the suction and delivery ducts do not transmit any stresses to the pump, by installing
sufficiently strong supports. If this is not done, the pump could become misaligned and even break.
2. Fit any check valves (between the pump and the delivery valve) in the following cases:
- In very long pipes.
- If the head is high.
- If the operation is automatic.
- When you fill a tank under pressure.
- When the operation is in parallel.
3. Mount air relief valves, if required, in those parts of the installation where it is impossible to avoid the
formation of air bubbles. However, they must not be fitted at points where the pressure is less than
atmospheric pressure, since the valve would suck in air rather than expel it.
4. To reduce the effect of a water hammer, mount a check valve with spring.
5. Suction systems:
- The bottom end of the suction pipe must remain submerged and at a depth of at least twice the
diameter of the pipe (2D) and at a distance from the bottom of 1 time to 1 and a half times the diameter
(1~1.5 D).
- Fit a bottom valve with a filter at the beginning of the suction pipe to prevent the entry of any foreign
bodies.
1
Pump
2
Motor
3
Pipe Support
4
Flexible Joint
5
Check valve
6
Gate valve
7
Foot valve
8
Eccentric reduction
2
1
3
4
5
6
7
8
3
1~1.5D
D
2D
1~1.5D

Other manuals for EBARA GS

Related product manuals