EasyManua.ls Logo

EDWARDS SYSTEMS TECHNOLOGY CMDN - SAN Enclosure Installation

Default Icon
72 pages
Print Icon
To Next Page IconTo Next Page
To Next Page IconTo Next Page
To Previous Page IconTo Previous Page
To Previous Page IconTo Previous Page
Loading...
CMDN Manual 13
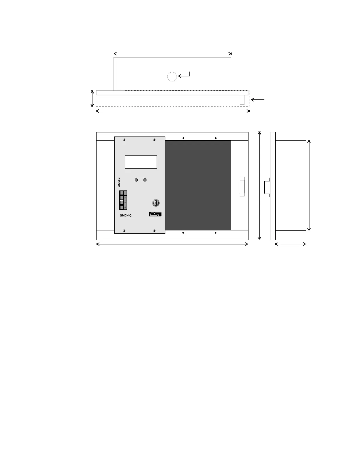
KNOCKOUT FOR 3/4"
CONDUIT (TOP & BOTTOM)
COVER
11.25" (28.6 cm)
16.25" (41.3 cm)
16" (40.6 cm) 2.5" (6.4 cm)
11.5" (29.2 cm)
9.5"
(
24.1 cm
)
FRONT VIEW
T
O
PVIEW
SIDE VIEW
[CMDN-008.CDR]
1.4" (3.6 cm)
NORMAL
ALARM
BACK
RESET
DISABLE
SYSTEM ANNUNCIATOR
ENABLE
ALARM
SILENCE
TROUBLE
SILENCE
DRILL/
ALL CALL
NEXT/ACK
SUPERVISORY
TROUBLE
EDWARDS SYSTEMS T ECHNOLOGY
SMDN-C and SAN-4 Enclosure Installation
firealarmresources.com

Related product manuals