EasyManua.ls Logo

EDWARDS SYSTEMS TECHNOLOGY CMDN - RSAN-6 Mounting Frame Installation; CMDN and CMDN-C Surface Mount Installation

Default Icon
72 pages
Print Icon
To Next Page IconTo Next Page
To Next Page IconTo Next Page
To Previous Page IconTo Previous Page
To Previous Page IconTo Previous Page
Loading...
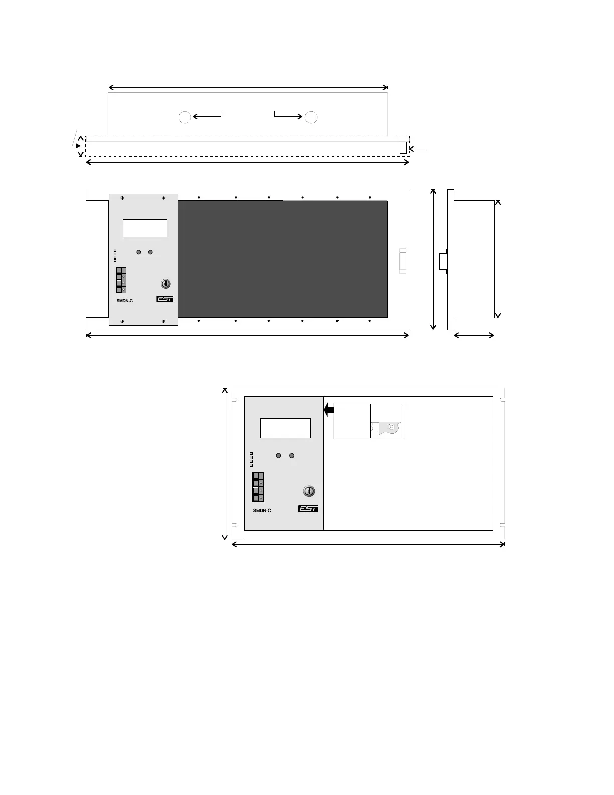
14 CMDN Manual
KNOCKOUTS FOR 3/4"
CONDUIT (TOP & BOTTOM)
COVER
22.37" (56.8 cm)
27.41" (69.6 cm)
27.12" (68.9 cm) 2.5" (6.4 cm)
11.5" (29.2 cm)
9.5"
(
24.1 cm
)
FRONT VIEW
T
O
PVIEW
SIDE VIEW
[CMDN-009.CDR]
1.4" (3.6 cm)
NORMAL
ALARM
BACK
RESET
DISABLE
SYSTEM ANNUNCIATOR
ENAB LE
ALARM
SILENCE
TROUBLE
SILENCE
DRILL/
ALL CA LL
NEXT/ACK
SUPERVISORY
TROUBLE
EDWARDS SYSTEMS TECHNOLO GY
SMDN-C and SAN-8 Enclosure Installation
NORMAL
ALARM
BACK
RESET
DISABLE
SYSTEM A NNUNCIATOR
ENAB LE
ALARM
SILENC E
TR OU BLE
SILENC E
DRILL/
ALL CALL
NEXT/ACK
SUPERVI SORY
TROUBLE
E DWAR DS SY STEM S TE CH NOL OG Y
19" (48.3 cm)
1
0
.5
"
(
2
6
.7 cm
)
FRONT VIEW - INSTALLED IN
CB 17, 31, 45 ENCLOSURE
[CMDN-010.CDR]
MODULE
MOUNTS
ON STUDS
WITH NUTS
REAR
VIEW
SMDN-C and RSAN-6 Mounting Frame Installation
CMDN and CMDN-C Installation
The CMDN and CMDN-C mount in a stand-alone surface mount
enclosure (P/N 200032).
1. Mount the enclosure (P/N 200032) in the required location.
2. Install conduit in the knockouts provided.
3. Mount annunciator in enclosure with hardware provided.
4. Wire annunciator.
firealarmresources.com

Related product manuals