EasyManua.ls Logo

EDWARDS SYSTEMS TECHNOLOGY EST2 - Posting operator instructions

Default Icon
120 pages
Print Icon
To Next Page IconTo Next Page
To Next Page IconTo Next Page
To Previous Page IconTo Previous Page
To Previous Page IconTo Previous Page
Loading...
P/N: 3100029 REV: 1.0 Page 2 of 4
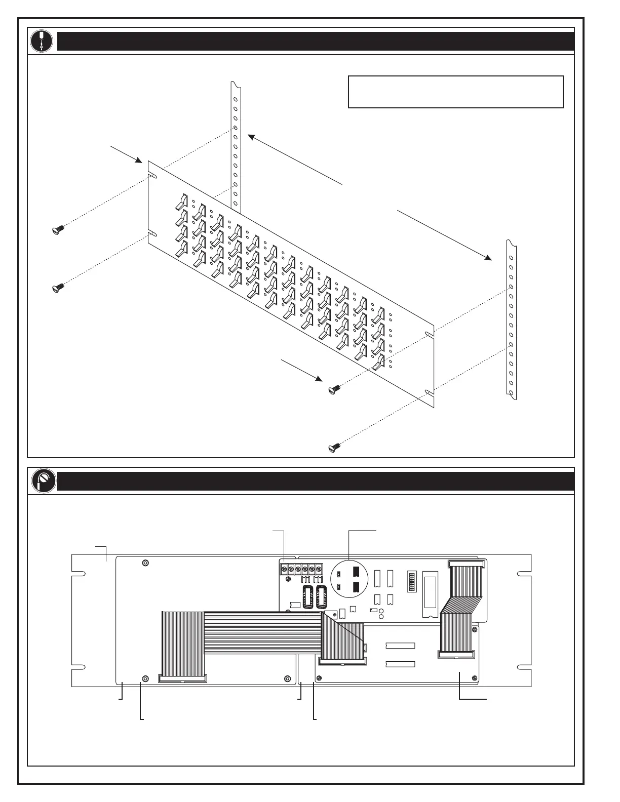
INSTALLATION INSTRUCTIONS
FIELD WIRING
19-inch rack
ISP96 series panel
Screw
SAN-CPU terminals (See Table 1 and Detail A.)
I/O SelectLED/switch board
Note: ISP96 series panels require 5.25 inches of vertical
height and 2 inches of rear clearance in the enclosure.
See Table 1 and Detail B.
LED/switch board
JP25 is located on the inside of this board,
facing the metal faceplate. Install the
jumper.
Metal faceplate
JP25 is located on the inside of this board,
facing the metal faceplate. Remove the
jumper.
ISP-96 (rear view)
Technical Manuals Online! - http://www.tech-man.com
firealarmresources.com

Table of Contents

Other manuals for EDWARDS SYSTEMS TECHNOLOGY EST2