EasyManua.ls Logo

Edwards nXR30i - Extra Silencer Removal; Mounting Kit Use

Edwards nXR30i
56 pages
Print Icon
To Next Page IconTo Next Page
To Next Page IconTo Next Page
To Previous Page IconTo Previous Page
To Previous Page IconTo Previous Page
Loading...
1. The gas ballast knob must be pulled out from gas ballast spindle by a
t headed
screwdriver or any similar tool can be used to lever the ng free. To help posion
the tool underneath the knob it may be necessary to parally rotate the knob in-
between notches.
2. Once the GB knob has been removed the internal valve can be extracted using an
21 mm socket wrench.
3. The adapter can now be installed using a 21 mm socket wrench. Make sure that a
clean O-ring is assembled onto the adapter before you start installaon.
6.13 Extra silencer removal
The pump is furnished by an addional removable silencer in the form of a drilled M12
plug that can be removed by allen key of size 10. Removal is advised when the exhaust
of the pump is connected to addional exhaust pipeline to gain up to 2 m
3
/h in pumping
speed from atmosphere.
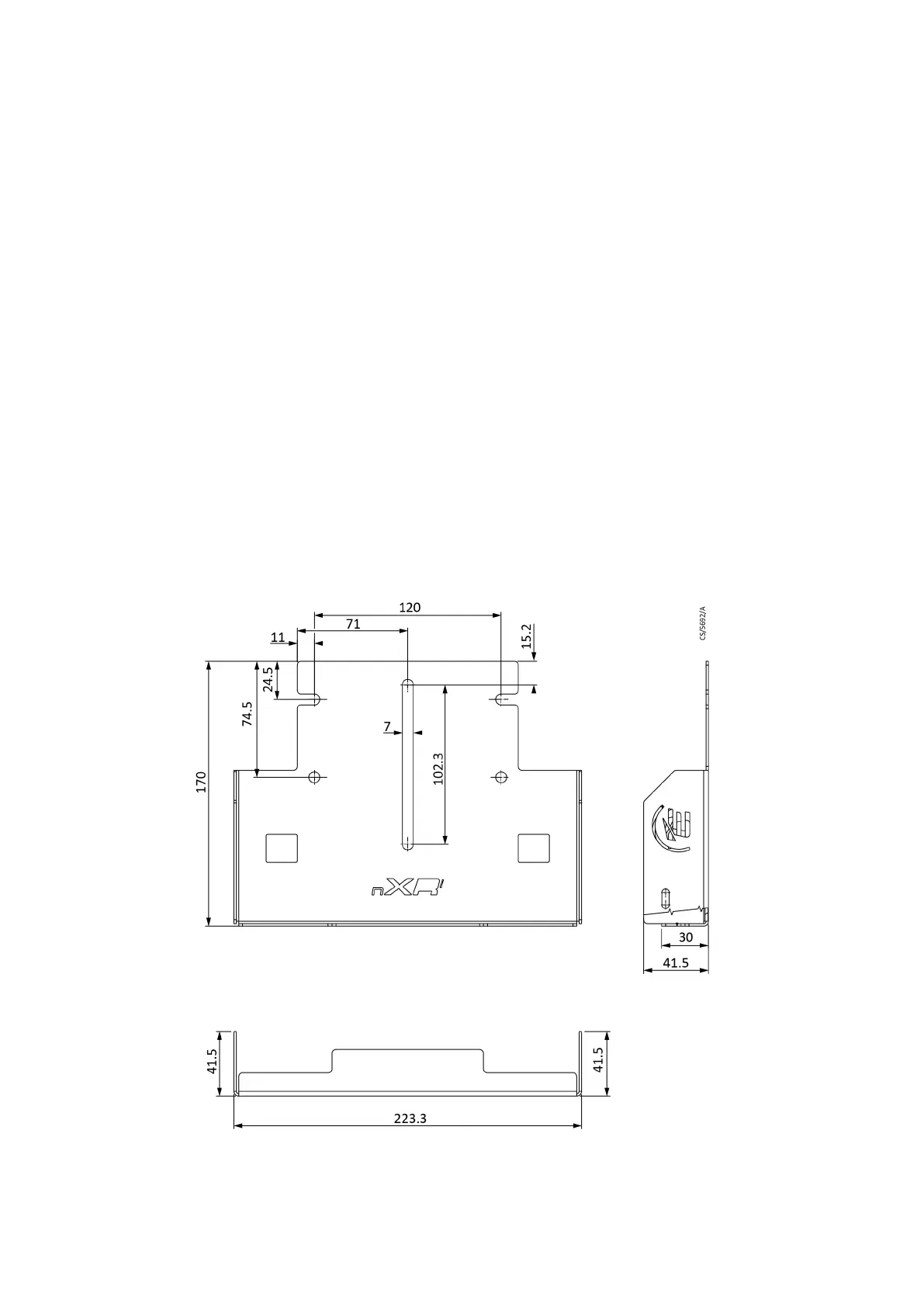
6.14 Mounng kit use
A mounng frame is available as an accessory (part number A90590000). This can be
used to mount the pump to a cart or bolt it to the oor. The mounng frame has two
holes and two holes for M8 bolts. These are aligned with the corresponding mounng
posions on Edwards leak detector carts (center slot) or turbo carts.
Installaon ins
trucons:
05/2021 - ©Edwards Limited
Page 37A90301880_C
A90301880_C - Oper
aon

Table of Contents

Related product manuals