EasyManua.ls Logo

ELECTRABRAKE EB0625 - EB-0625 EB1250 Circuit Diagram

Default Icon
41 pages
Print Icon
To Next Page IconTo Next Page
To Next Page IconTo Next Page
To Previous Page IconTo Previous Page
To Previous Page IconTo Previous Page
Loading...
25
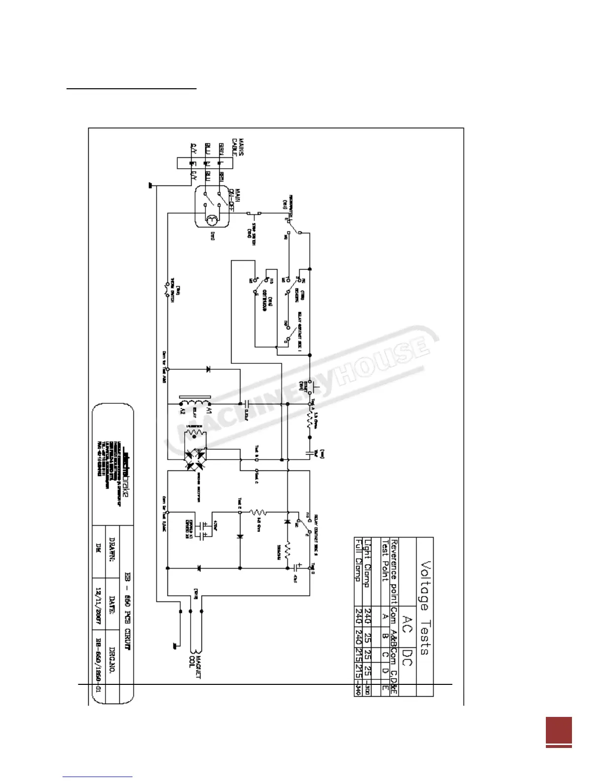
EB 0625 1250 CIRCUIT
25
Instruction Manual for EB2500 (S5321)
24/8/2012