EasyManua.ls Logo

Electrolux W575N - Outputs for Detergent Signals and Inputs for Pause Signals, Empty Signal and Price Reduction (2 D)

Electrolux W575N
48 pages
Print Icon
To Next Page IconTo Next Page
To Next Page IconTo Next Page
To Previous Page IconTo Previous Page
To Previous Page IconTo Previous Page
Loading...
Electricalconnection
41
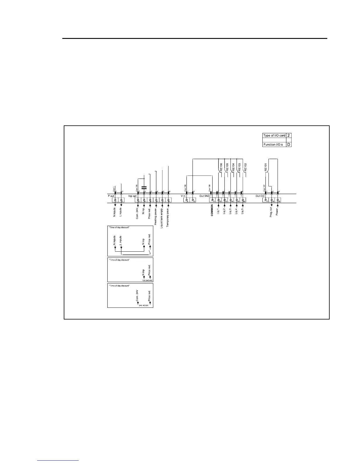
8.4.4Outputsfordetergentsignalsandinputsforpausesignals,"empty"signal
andpricereduction(2D)
Thegureshowsstandardfunctionaddressingformachineswiththecoinprogrampackage.
Bymaintaininganactive(high)signalonconnection5("Pricered"),thepriceoftheprogramcan
bereduced.Thisfunctionhasanumberofuses,includingprovidingreductionsduringaspecic
periodoftheday.Whilstthesignalremainsactive(high),thepriceoftheprogramisreducedbythe
percentageenteredinthepriceprogrammingmenu.
24
g.6314A

Related product manuals