EasyManua.ls Logo

Elenco Electronics M-2665K - Voltage Measurement; Current Measurement

Elenco Electronics M-2665K
36 pages
Print Icon
To Next Page IconTo Next Page
To Next Page IconTo Next Page
To Previous Page IconTo Previous Page
To Previous Page IconTo Previous Page
Loading...
-3-
VOLTAGE MEASUREMENT
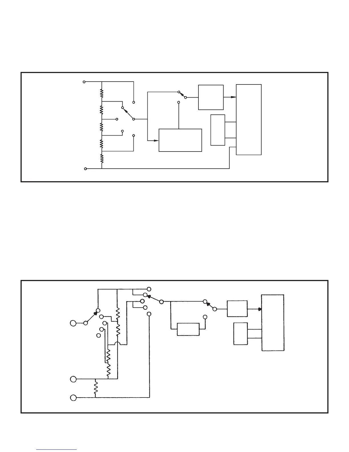
Figure 3 Simplified Voltage Measurement Diagram
Figure 4 Simplified Current Measurement Diagram
200mV
Volts
9M
900k
90k
9k
1k
Common
1kV
200V
20V
2V
AC to DC
Converter
AC
DC
Low Pass
Filter
100mV
Ref
7106R
200m
A
900
2mA
20mA
200mA
20A
100
9W
1W
Shunt
.01W
COM
20A
20A
200mA
20mA
200mA
2mA
AC - DC
Converter
AC
DC
Low
Pass
Filter
100mV
Ref
7106R
Figure 3 shows a simplified diagram of the voltage
measurement function.
The input divider resistors add up 10MW with each
step being a division of 10. The divider output
should be withing –0.199 to +0.199V or the overload
indicator will function. If the AC function is selected,
the divider output is AC coupled to a full wave
rectifier and the DC output is calibrated to equal the
rms level of the AC input.
Figure 4 shows a simplified diagram of the current
measurement positions.
Internal shunt resistors convert the current to
between –0.199 to +0.199V which is then
processed in the 7106 IC to light the appropriate
LCD segments. If the current is AC in nature, the
AC converter changes it to the equivalent DC value.
CURRENT MEASUREMENT

Related product manuals